Exposé
Objektart:
Büro / Praxen
» Buerohaus
» Miete
Standort: Büro / Praxen »
Deutschland » Sachsen » Leipzig, Stadt (Kreis) » Leipzig
BUERO.flächen in Stadtvilla im Zentrum
Außenansicht
Das Wichtigste auf einen Blick:
| Objektnummer: | 8281498 |
Preise
| Miete für das Objekt | Auf Anfrage |
| Nebenkosten | keine Angabe |
| Heizkosten enthalten | Ja |
| Mietpreis pro m² | 8,5 € |
Flächen
| Bürofläche | 699 m² |
| Bürofläche | 699 m² |
| Fläche teilbar ab | 699 m² |
| Maklerprovision | provisionsfrei |
Objekt Adresse
Elsterstraße 8a
04109 Leipzig
Sonstige Angaben
| Baujahr | 1920 |
| Zimmer | 17 |
| Verfügbar ab | keine Angabe |
Objektbeschreibung
Die frühere Fabrikantenvilla mit einer Fläche von insgesamt ca. 1993 m² wurde im Jahre 1920 errichtet und wurde 1994 zweckmäßig und barrierefrei saniert. Alle Etagen sind über einen zentralen Eingangsbereich mit einer ebenerdigen Aufzugsanlage erschlossen. In der lichtdurchfluteten und freistehende Bürovilla stehen im Erdgeschoß insgesamt 545 m² Bürofläche zur Verfügung. Das Gartengeschoss mit weiteren möglichen 154 m² ist über eine interne Treppe angebunden und bietet dank Tageslichtbeleuchtung weitere Flächen zur Nutzung als Büro, Werkstatt, Archiv oder Personalräume. Der Garten bietet einen schönen und gepflegten Baumbestand. Die Mietflächen verfügen über folgende Ausstattungsmerkmale:
- aktuell Teppichboden, flexibel austauschbar
- teilweise CAT 5/7 Verkabelung
- abgehängte Decken mit integrierter Beleuchtung
- teilweise Wasseranschluss in den Räumen
Die Mietflächen können nach dem Raumprofil des Mieters ausgestattet werden. Die große begrünte Grundstücksfläche ist für die Mieter gemeinschaftlich nutzbar. PKW-Stellplätze stehen auf dem Grundstück und im benachbarten öffentlichen Parkhaus "Thomasium" zur Verfügung. Fahrradstellplätze oder ein Fahrradkeller können auf dem Gelände genutzt werden.
- aktuell Teppichboden, flexibel austauschbar
- teilweise CAT 5/7 Verkabelung
- abgehängte Decken mit integrierter Beleuchtung
- teilweise Wasseranschluss in den Räumen
Die Mietflächen können nach dem Raumprofil des Mieters ausgestattet werden. Die große begrünte Grundstücksfläche ist für die Mieter gemeinschaftlich nutzbar. PKW-Stellplätze stehen auf dem Grundstück und im benachbarten öffentlichen Parkhaus "Thomasium" zur Verfügung. Fahrradstellplätze oder ein Fahrradkeller können auf dem Gelände genutzt werden.
Lage des Objektes
Das villenartige Gebäude des BUERO.CENTER´s befindet sich in einem ruhig gelegenen Innenhof inmitten der Leipziger Innenstadt. Innerhalb von wenigen Minuten erreicht man den Verkehrsknotenpunkt Hauptbahnhof sowie sämtliche Mittel des öffentlichen Verkehrsbetriebes. Als auch die Anbindung an die B2 und den anliegenden Autobahnanschlüssen.
Sonstige Informationen
Der genannte Mietpreis bezieht sich auf eine Übergabe im bestehende Zustand für einen Mietvertrag auf unbestimmte Zeit. Andernfalls liegt die Miete zwischen 14,50 EUR - 17,50 EUR.
Büroanmietung leicht gemacht?
Bitte sprechen Sie uns an, gern stellen wir Ihnen eine Auswahl geeigneter Büroflächenangebote zusammen. Für Fragen, ein persönliches Gespräch oder eine persönliche Terminvereinbarung stehen wir Ihnen gern telefonisch unter 0341-5643000 zur Verfügung.
Außenansicht
Innenansicht
Innenansicht
Innenansicht
Innenansicht
Außenansicht
Außenansicht
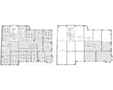
Grundriss EG + UG