Exposé
Objektart:
Haus
» Einfamilienhaus
» Kauf
Moderne Villa in einer ruhigen Umgebung
Das Wichtigste auf einen Blick:
| Objektnummer: | 8272874 |
Preise
| Kaufpreis | 599.000 € |
| Nebenkosten | keine Angabe |
Flächen
| Gesamtfläche | 226 m² |
| Grundstücksfläche | 700 m² |
Objekt Adresse
51514 Dobrinj
- Kvarner Region [Primorsko-Goranska]
Sonstige Angaben
| Baujahr | 2021 |
| Letzte Modernisierung | 2021 |
| Zimmer | 5 |
| Verfügbar ab | keine Angabe |
| Bad | 5 |
| Anzahl der Etagen im Haus | 2 |
| Bad | 5 |
Objektbeschreibung
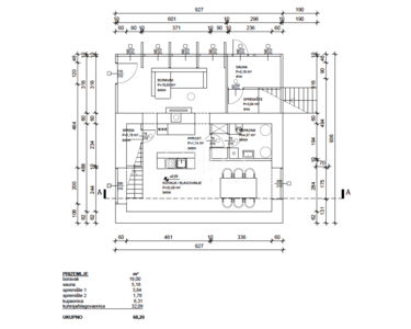
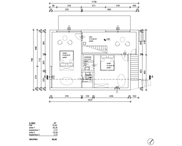
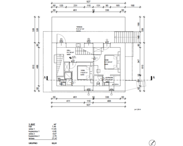
Ein Haus zum Verkauf in ruhiger Lage am Rande einer Grünzone. Das Haus mit einer Fläche von 226,19 m2 besteht aus einem Erdgeschoss und zwei Etagen. Im Erdgeschoss gibt es eine Küche mit Esszimmer (32,09 m2), ein großes Wohnzimmer von 19 m2, ein Badezimmer und eine Sauna. Im ersten Stock befinden sich zwei Schlafzimmer mit jeweils eigenem Bad, eine große Terrasse von 27,47 m2 mit freiem Blick ins Grüne. Die zweite Etage besteht wie die erste aus zwei Schlafzimmern, zwei Badezimmern und einem Vorraum mit Zugang zur Terrasse. Hochwertige Materialien; Bodenbeläge - Parkett und erstklassige Keramik, Fußbodenheizung über Wärmepumpe sowie Klimaanlagen. Zum Meer sind es 3 km, zur Stadt Krk 15 km und zur nahegelegenen Stadt Malinska 10 km. Das Haus verfügt über einen 700 m2 großen Garten mit Swimmingpool und Liegewiese. Es gibt genügend Platz, um mindestens 3 Autos zu parken. Diese Villa ist eine ideale Gelegenheit für zukünftige Eigentümer, Naturliebhaber oder kann zur touristischen Vermietung gekauft werden.
ID CODE: EI-3164
ID CODE: EI-3164