Exposé
Objektart:
Büro / Praxen
» Bueroflaeche
» Miete
Standort: Büro / Praxen »
Deutschland » Nordrhein-Westfalen » Mettmann (Kreis) » Hilden
Modern, hell, repräsentativ, ideales Vertriebsbüro!
Büro
Das Wichtigste auf einen Blick:
| Objektnummer: | 8254811 |
Preise
| Kaltmiete | 3.564,12 € |
| Warmmiete | 4.582,44 € |
| Nebenkosten | 1018,32 € |
| Heizkosten enthalten | Ja |
| Mietpreis pro m² | 10,5 € |
Flächen
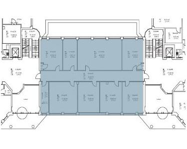
| Gesamtfläche | 339,44 m² |
| Bürofläche | 339,44 m² |
Objekt Adresse
40724 Hilden
Sonstige Angaben
| Verfügbar ab | keine Angabe |
| Boden | Teppich |
Objektbeschreibung
Zentral in der City - modernes Gebäude - nette Nachbarn - hier macht die Arbeit Spaß! Das Gebäude mit dem großzügigen, hellen Treppenhaus wirkt schon beim Betreten einladend.
Der geräumige Aufzug bringt Sie und Ihre Kunden bequem in Ihre Etage. Ihr neues Büro ist rund um die Uhr (24/7) nutzbar.
Moderne, getrennte WC-Bereiche hygenisch vom Treppenhaus zu begehen. Helle, transparente Glastüren öffnen sich in Ihre Räumlichkeiten. Überall herrscht Tranparenz und Offenheit vor. Die Grundrissgestaltung ist flexibel möglich - ob Großraumbüro, Meeting- und Konferenzräume oder Einzel- und Doppelbüros für ungestörtes Arbeiten - hier können Sie frei wählen.
Zu jeder Einheit gehört eine modern eingerichtete Teeküche, der kommunikative Anlaufpunkt für die kleinen Pausen zwischendurch.
Stellplätze sind im Parkhaus nebenan optional verfügbar.
Der geräumige Aufzug bringt Sie und Ihre Kunden bequem in Ihre Etage. Ihr neues Büro ist rund um die Uhr (24/7) nutzbar.
Moderne, getrennte WC-Bereiche hygenisch vom Treppenhaus zu begehen. Helle, transparente Glastüren öffnen sich in Ihre Räumlichkeiten. Überall herrscht Tranparenz und Offenheit vor. Die Grundrissgestaltung ist flexibel möglich - ob Großraumbüro, Meeting- und Konferenzräume oder Einzel- und Doppelbüros für ungestörtes Arbeiten - hier können Sie frei wählen.
Zu jeder Einheit gehört eine modern eingerichtete Teeküche, der kommunikative Anlaufpunkt für die kleinen Pausen zwischendurch.
Stellplätze sind im Parkhaus nebenan optional verfügbar.
Ausstattung
- EDV-Datenverkabelung mit Fensterbankkabelkanal
- Anschluss für Teeküche
- Klimatisierte Serverräume
- Aufzug
- elektrischer Sonnenschutz
- Renovierung und/oder Klimatisierung nach Absprache
- Centermanagement vor Ort, Reinigungsservice
- Stellplätze ab 50 €
- Anschluss für Teeküche
- Klimatisierte Serverräume
- Aufzug
- elektrischer Sonnenschutz
- Renovierung und/oder Klimatisierung nach Absprache
- Centermanagement vor Ort, Reinigungsservice
- Stellplätze ab 50 €
Lage des Objektes
Hilden mit 55.000 Einwohnern zeichnet sich durch die Nähe zu Düsseldorf aus und liegt verkehrsgünstig am Hildener Kreuz.. Die Verkehrsverbindungen in die Landeshauptstadt und auf die umliegenden Autobahnen sind ausgezeichnet. Ob Düsseldorf, Köln, der Niederrhein oder das Ruhrgebiet - in 20-30 Minuten erreichen Sie alle Nachbarstädte. Auch der Flughafen Düsseldorf ist nur ca. 30 Autominuten entfernt.
In der wirtschaftsfreundlichen Itterstadt Hilden haben sich viele innovative Unternehmen angesiedelt, Mittelständler, Hidden Champions und international erfolgreich etablierte Konzerne. Der Gewerbesteuerhebesatz beträgt unternehmensfreundliche 400 %.
Der moderne Gewerbekomplex liegt zentral in der Hildener City. Die Bushaltestelle mit vier verschiedenen Linien ist nur fünf Gehminuten entfernt, zum mittäglichen Imbiss gehen Sie einfach über die Straße, alles Notwendige zum Einkaufen finden Sie in der beliebten Fußgängerzone Mittelstraße gleich um die Ecke.
In der wirtschaftsfreundlichen Itterstadt Hilden haben sich viele innovative Unternehmen angesiedelt, Mittelständler, Hidden Champions und international erfolgreich etablierte Konzerne. Der Gewerbesteuerhebesatz beträgt unternehmensfreundliche 400 %.
Der moderne Gewerbekomplex liegt zentral in der Hildener City. Die Bushaltestelle mit vier verschiedenen Linien ist nur fünf Gehminuten entfernt, zum mittäglichen Imbiss gehen Sie einfach über die Straße, alles Notwendige zum Einkaufen finden Sie in der beliebten Fußgängerzone Mittelstraße gleich um die Ecke.
Sonstige Informationen
Arbeiten mit netten Nachbarn und mitten in der Hildener City. So ist die Mittagspause und der tägliche Einkauf nebenan ganz easy erledigt. Fragen Sie uns nach Ihren speziellen Flächenanforderungen. Wir sind zuversichtlich, Ihnen ein Angebot zu machen, das Sie nicht ablehnen können.
Die Mietpreise stellen Anfangsmieten dar. Die Miethöhe kann in Abhängigkeit von Mietvertragslaufzeit, Umbaukosten, Ausstattungswünschen und Bonität des Mieters variieren.
Büro
Büro
Büro
Grundriss