Exposé
Objektart:
Büro / Praxen
» Buerohaus
» Miete
Standort: Büro / Praxen »
Deutschland » Sachsen » Leipzig, Stadt (Kreis) » Leipzig
BUERO.flächen im NEUBAU in der KONSUMZENTRALE in Plagwitz
Außenansicht
Das Wichtigste auf einen Blick:
| Objektnummer: | 8248194 |
Preise
| Miete für das Objekt | Auf Anfrage |
| Nebenkosten | keine Angabe |
| Mietpreis pro m² | 16,5 € |
Flächen
| Bürofläche | 2.585 m² |
| Bürofläche | 2.585 m² |
| Fläche teilbar ab | 2585 m² |
| Maklerprovision | provisionsfrei |
Objekt Adresse
Industriestraße 85-95
04229 Leipzig
Sonstige Angaben
| Verfügbar ab | keine Angabe |
Objektbeschreibung
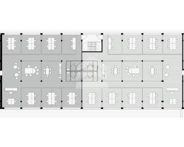
Das imposante Industriedenkmal KONSUMZENTRALE wurde 1929 von Fritz Höger entworfen, ca. 1930 erbaut und steht unter Denkmalschutz. In den originalgetreu wiederhergestellten Flächen haben sich heute nach der Sanierung neben der Zentrale der Konsumgenossenschaft Leipzig eG inzwischen viele andere Unternehmen niedergelassen. Die im Neubau zur Vermietung stehenden Flächen werden über 2 Eingangsbereiche und Aufzugsanlagen erschlossen. Die Mietbereiche können nach dem Raumprofil des Nutzers ausgebaut und ausgestattet werden. Insgesamt stehen folgende Mietflächen zu Anmietung:
- Erdgeschoss laden mit 260 m² und Gastronomie mit 280 m² + Terrasse
- 1. Obergeschoss 800 m² Bürofläche teilbar ab 370 m²
- 2. Obergeschoss 800 m² Bürofläche teilbar ab 370 m²
- 3. Obergeschoss 800 m² Bürofläche teilbar ab 370 m²
- 4. Obergeschoss 625 m² Bürofläche + 185 m² Terrasse
- 5. Obergeschoss 620 m² Bürofläche
Die Flächen können in Teilflächen und insgesamt angemietet werden. PKW Stellplätze sind auf dem Gelände bzw. einem benachbarten Parkdeck vorhanden.
- Erdgeschoss laden mit 260 m² und Gastronomie mit 280 m² + Terrasse
- 1. Obergeschoss 800 m² Bürofläche teilbar ab 370 m²
- 2. Obergeschoss 800 m² Bürofläche teilbar ab 370 m²
- 3. Obergeschoss 800 m² Bürofläche teilbar ab 370 m²
- 4. Obergeschoss 625 m² Bürofläche + 185 m² Terrasse
- 5. Obergeschoss 620 m² Bürofläche
Die Flächen können in Teilflächen und insgesamt angemietet werden. PKW Stellplätze sind auf dem Gelände bzw. einem benachbarten Parkdeck vorhanden.
Lage des Objektes
In den 1880er Jahren war Plagwitz bereits eine in vielen Ländern der Welt bekannte Adresse – als Herkunftsort damals moderner und zuverlässiger Industrieerzeugnisse. Heute gilt diese Region als eines der innovativsten und interessantesten Stadtgebiete Leipzigs. Die Revitalisierung und Schaffung urbaner Strukturen, die zentrale Lage im Stadtgebiet und die Lage am Karl-Heine-Kanal, haben Plagwitz nicht nur zu einem beliebten Standort für Unternehmen sondern auch zum Wohnen entwickelt. In den früheren Industriegebäuden entstanden kreative Varianten zahlreicher Lofts, oft mit Blick über das Wasser".
Sonstige Informationen
Der Mietpreis richtet sich nach Ausstattung, Lage im Gebäude und Vertragslaufzeit und liegt zwischen 16,50 EUR/ m² und 19,50 EUR/ m².
Außenansicht
Außenansicht
Außenansicht
Objekt-Bild
Objekt-Bild
Regelgeschoss