Exposé
Objektart:
Wohnung
» Kauf
Standort: Wohnung »
Deutschland » Rheinland-Pfalz » Kaiserslautern (Kreis) » Kaiserslautern / Hohenecken
Kapitalanlage in bevorzugter Lage in Hohenecken zu verkaufen
Apartment im Obergeschoss
Das Wichtigste auf einen Blick:
| Objektnummer: | 8243732 |
Preise
| Kaufpreis | 59.000 € |
| Nebenkosten | keine Angabe |
| Hausgeld | 178 € |
Flächen
| Wohnfläche | 21 m² |
| Nutzfläche | 3 m² |
| Maklerprovision | 3,57 % |
Objekt Adresse
67661 Kaiserslautern / Hohenecken
Sonstige Angaben
| Baujahr | 1992 |
| Verfügbar ab | keine Angabe |
| Bad | 1 |
| Anzahl der Etagen im Haus | 2 |
| Inserat befindet sich im Stockwerk | 0 |
| Küche | Pantry |
| Bad | 1 |
| Garten | Ja |
| Energieausweistyp | Verbrauch |
| Gültig bis | 2032-03-10 |
| Baujahr (laut Energieausweis) | 1992 |
| Energieeffizienzklasse | E |
| Energieverbrauchkennwert | 156.00 kWh/(m²*a) |
| Heizungsart | Zentralheizung |
| Wesentlicher Energieträger | Gas |
| Energieträger/Befeuerung | Gas |
Objektbeschreibung
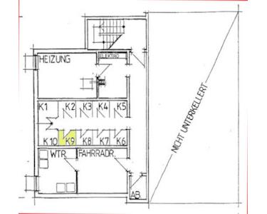
Das Apartment Nr. 9 befindet sich in einem zweistöckigen, teilunterkellerten Mehrfamilienhaus mit insgesamt 10 Apartments. Zum Apartment gehört ein Wohn/Schlafzimmer, eine Kochnische mit Pantryküche, ein Duschbad, und ein ein Abstellraum im Kellerbereich. Ein befestigter Stellplatz im Freien ist angemietet. Das Apartment ist durch seine große Fensterfront lichtdurchflutet und hell. Das vor ca. 30 Jahren in konventioneller Massivbauweise errichtete Gebäude befindet sich in gutem Bau- und Unterhaltungszustand.
Das Eigentumsgrundstück hat eine ca. 719 m² große Gesamtfläche, ist angelegt und wird von einem Hausmeisterservice gepflegt. Es besteht die Möglichkeit für die Mieter, den großen Gartenbereich mit zu nutzen.
Das Eigentumsgrundstück hat eine ca. 719 m² große Gesamtfläche, ist angelegt und wird von einem Hausmeisterservice gepflegt. Es besteht die Möglichkeit für die Mieter, den großen Gartenbereich mit zu nutzen.
Ausstattung
Zeitgemäße normale Ausstattung.
Renoviert.
Bad mit Dusche, Handwaschbecken und WC.
Pantryküche im Preis enthalten.
Breitbandkabelanschluss (TV).
Schneller Internetzugang (DSL).
Stellplätze vor dem Haus (keine gebührenpflichtige Anwohnerparkzone) können angemietet werden.
Renoviert.
Bad mit Dusche, Handwaschbecken und WC.
Pantryküche im Preis enthalten.
Breitbandkabelanschluss (TV).
Schneller Internetzugang (DSL).
Stellplätze vor dem Haus (keine gebührenpflichtige Anwohnerparkzone) können angemietet werden.
Lage des Objektes
Das Apartmenthaus liegt in einer ruhigen Seitenstraße (Stichstraße) in Hohenecken. Über die Bundesstraße (B 270) ist die Kernstadt Kaiserslautern gut und schnell zu erreichen. Städtische Linienbusse, auch direkt zum Universitätscampus, verkehren in hoher Frequenz regelmäßig. Die Bushaltestelle ist fünf Gehminuten entfernt. Desweiteren gibt es auch eine Bahnverbindung zum Hauptbahnhof Kaiserslautern. Vielfältige Einkaufsmöglichkeiten sind in Hohenecken und im ca. 3 km entfernten Kaiserslauterer Gewerbegebiet West vorhanden.
Zur Universität (die auch in wenigen Minuten per Fahrrad durch den Pfälzer Wald zu erreichen ist) sind es etwa 4 km, zur Fachhochschule ebenfalls etwa 4 km und ins Zentrum von Kaiserslautern etwa 6 km.
Zur Universität (die auch in wenigen Minuten per Fahrrad durch den Pfälzer Wald zu erreichen ist) sind es etwa 4 km, zur Fachhochschule ebenfalls etwa 4 km und ins Zentrum von Kaiserslautern etwa 6 km.
Sonstige Informationen
Ausführliche Informationen erhalten Sie jederzeit per E-Mail. Für Terminvereinbarungen zur Besichtigung des Objekts bitten wir mit unserer Mitarbeiterin, Frau Feurich, zu sprechen. Sie ist dienstags und mittwochs zwischen 10:30 Uhr und 14:00 Uhr für Sie unter der Telefonnummer 0631 66766 erreichbar.
Die Firma Gödtel Immobilien GmbH als Vermittler übernimmt keine Haftung, Gewährleistung und/oder sonstige Einstandspflichten im Zusammenhang mit dem Inhalt und/oder der Richtigkeit dieses Exposés. Alle Angaben beruhen auf Mitteilungen der Auftraggeber und erfolgen ohne unsere Gewähr für die Richtigkeit. Irrtum und Zwischenverkauf vorbehalten. Wir weisen explizit darauf hin, dass die von uns weitergegebenen Objektinformationen vom Verkäufer und von uns weder auf ihre Richtigkeit noch auf ihre Vollständigkeit überprüft worden sind.
Hinweis: Durch die schriftliche Bestätigung der Inanspruchnahme unserer Tätigkeit als Makler kommt ein Maklervertrag zustande, insbesondere durch die Zusendung des Objektexposes und/oder der Erteilung eines Suchauftrags. Die Höhe der Maklercourtage ist in der rechtsverbindlichen gesetzlichen Regelung über die Verteilung der Maklerkosten bei der
Vermittlung von Kaufverträgen über Wohnungen und Einfamilienhäuser vom 23. Dezember 2020 geregelt. Darin wird festgelegt, dass für den Verkäufer und den Käufer jeweils die ortsübliche Courtage von drei Prozent zuzüglich des jeweils gültigen Steuersatzes beim notariellen Vertragsabschluss verdient und fällig ist (Teilung der Courtage von ortsüblich sechs Prozent zuzüglich des jeweils geltenden Steuersatzes). Dadurch entsteht ein direkter Zahlungsanspruch gegenüber dem Käufer nach § 328 BGB (Vertrag zugunsten Dritter). Die Firma Gödtel Immobilien GmbH hat mit dem Auftraggeber (Verkäufer) einen Maklervertrag in gleicher Höhe abgeschlossen.
Mehrfamilienhaus Burgunderstr
Apartment 9 imObergeschoss
Ansicht von Süden
Ansicht von Norden
Zimmer (Beispiel)
Treppenhaus
Flur im Kellergeschoss
Abstellraum K 9 rechts
Grundriss Apartment 9
Abstellraum K 9