Exposé
Objektart:
Haus
» Doppelhaushaelfte
» Kauf
INSEL KRK, MALINSKA - Moderne Villa mit Pool in Meeresnähe
Angeboten von:
DUX Nekretnine d.o.o.
Tizianova
51000 Rijeka
Telefon:+385 51518-174
www.dux-nekretnine.hr
Ansprechpartner/in
DUX Nekretnine| Telefon: | +385 91 480 8808 |
| Mobil | +385 91 480 8808 |
Das Wichtigste auf einen Blick:
| Objektnummer: | 8168922 |
Preise
| Kaufpreis | 850.000 € |
| Nebenkosten | keine Angabe |
Flächen
| Gesamtfläche | 196 m² |
Objekt Adresse
51511 Malinska-Dubašnica
- Kvarner Region [Primorsko-Goranska]
Sonstige Angaben
| Baujahr | 2023 |
| Zimmer | 4 |
| Verfügbar ab | keine Angabe |
| Bad | 3 |
| Anzahl der Etagen im Haus | 0 |
| Bad | 3 |
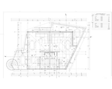
Objektbeschreibung
MALINSKA, Insel Krk - Moderne Villa mit Swimmingpool in Meeresnähe
Dieses wunderschöne Doppelhaus ist ein originelles und modernes architektonisches Werk. Es liegt in der Nähe des Meeres, etwa 100 Meter von schönen Stränden entfernt. Im Untergeschoss des Gebäudes befinden sich ein Schlafzimmer mit Bad, eine Toilette, ein Technikraum mit Waschküche und ein multifunktionaler Raum, der eine Taverne, ein Spielzimmer, ein Wellness oder alles andere sein kann, was der Eigentümer wählt. Im Erdgeschoss befinden sich zwei Schlafzimmer, jedes mit eigenem Bad und Zugang zu einer überdachten Terrasse. Im ersten Stock gibt es eine Toilette, einen offenen Raum mit Küche, ein Esszimmer und ein Wohnzimmer, von dem aus man Zugang zu einer überdachten Terrasse hat, von der man über eine Wendeltreppe hinunter in einen schönen Garten mit Schwimmbecken gelangt Pool und eine eingerichtete Liegewiese. Die Anlage verfügt über zwei Parkplätze. Die gesamte Anlage verfügt über Fußbodenheizung, während die Kühlung durch Klimaanlagen erfolgt. Im Gebäude werden hochwertige Materialien in bewährter Qualität verbaut. Eine Alarm- und Videoüberwachung, eine Autoladestation sowie eine Solaranlage auf dem Dach des Gebäudes sind vorbereitet. Architektonisch ansprechende Häuser werden in höchster Qualität gebaut, „schlüsselfertig“ verkauft und mit hochwertiger Ausstattung ausgestattet – Aluminiumschreinerei, Fußbodenheizung und Klimaanlage, beheizte Schwimmbäder, erstklassige italienische Keramik, vor allem -Klasse deutsches Parkett, Sanitärausstattung der Marken Villeroy&Boch, Grohe und Hansgrohe. Das Objekt befindet sich im Mehrwertsteuersystem. Die Fertigstellung wird für Ende 2023 erwartet.
MALINSKA und sein gesamtes Gebiet heißt Dubašnica und liegt im westlichen Teil der Insel Krk. Bis zum 15. Jahrhundert war Dubašnica fast ohne ständige Einwohner, ebenso wie das Gebiet südlich davon, fast bis zur Stadt Krk. Der Name der Gegend kommt von Eiche oder Eiche, weil es hier reiche Wälder und Weiden mit etwas Ackerland gibt. Dubašnica war bereits vor dem 12. Jahrhundert hauptsächlich ein Gebiet von Omišalj, aber ein Teil davon wurde auch von den Krk-Leuten gehalten. Malinska, als Zentrum von Dubašnica, war einst ein Inselhafen für den Export von Holz und ein beliebtes Touristenziel der Wiener Aristokratie. Es wurde im 15. Jahrhundert als guter Ankerplatz erwähnt, wo Schiffe bei starkem Wind, insbesondere aus dem Süden, Schutz suchten. Mit der Ankunft des Dampfschiffes im Jahr 1866 wandelte sich Malinska dank des milden Klimas mit etwa 260 Sonnentagen im Jahr vom Holzexporthafen zum Luftkurort. Heute ist es eines der stärksten Touristenziele der Insel, bekannt für seine zahlreichen Strände und die entwickelte Hotellerie sowie den Familientourismus. Unweit von Malinska liegt Porat, ein beschaulicher Ort, wo die Bevölkerung einst vom Fischfang lebte, heute aber der Tourismus die Hauptrolle übernommen hat. Der Name des Ortes kommt vom italienischen Wort porto, was Hafen bedeutet. Die Strände in Malinska und auf der Insel Krka gehören zu den besten in Kroatien. Einer der Vorteile der gegliederten und breiten Küste in Malinska ist, dass die Strände, wohin Sie auch gehen, nie weit entfernt sind. Die abwechslungsreiche Küste der Insel bietet eine große Vielfalt an Stränden: von Fels-, Sand- und Kiesstränden bis hin zu versteckten Buchten. Strände für Kinder, für Behinderte, Nichtschwimmer oder Senioren, Strände für Hunde, Strände für diejenigen, die natürlichen Schatten und die Nähe zu Parkplätzen suchen, Liebhaber von Sportaktivitäten und Strandbars, aber auch ein inoffizieller FKK-Strand - all das ist angeboten von Malinska. Die Strände in der Gemeinde Malinska-Dubašnica sind durch zahlreiche Spazierwege verbunden und bilden eine einzigartige natürliche Einheit. Die Anordnung der Strände variiert von gepflegten Betonplateaus über wilde, felsige, abenteuerliche Zugänge zum Meer, aber auch viele weitere versteckte und versteckte Badeplätze in kleinen Buchten, die einen Besuch wert sind. Die Strände erstrecken sich entlang des westlichen Teils der Insel Krk: Sie beginnen entlang der Paradiesstraße, die Malinska und Njivice verbindet, und enden hinter der romantischen Stadt Porto. Malinska ist eines der Reiseziele, das Familien mit Kindern am meisten lieben. Neben einer extrem guten Anbindung und Nähe, vor allem zu Rijeka und Zagreb, hat sich Malinska durch sein Angebot an Familien- und Hotelunterkünften, Stränden und Gastronomieeinrichtungen zu akzeptablen Preisen im Laufe der Jahre als TOP-Wahl für viele Familien etabliert. Darüber hinaus sind die Sicherheit und Ruhe, die Malinska bietet, ein besonderer Bonus für alle Eltern, die echten Urlaub suchen. Wenn Sie möchten, dass Ihre Kinder im Urlaub Zauber erleben, wo Sie alle sorglos spazieren gehen, Fahrrad fahren oder Tage am kristallklaren Meer verbringen können, umgeben von Natur ohne allzu viel Lärm - besuchen Sie Malinska.
Sehr geehrte Kunden, die Agenturprovision wird gemäß den Allgemeinen Geschäftsbedingungen www.dux-nekretnine.hr/opci-uvjeti-poslovanja berechnet
ID CODE: 16991
Dieses wunderschöne Doppelhaus ist ein originelles und modernes architektonisches Werk. Es liegt in der Nähe des Meeres, etwa 100 Meter von schönen Stränden entfernt. Im Untergeschoss des Gebäudes befinden sich ein Schlafzimmer mit Bad, eine Toilette, ein Technikraum mit Waschküche und ein multifunktionaler Raum, der eine Taverne, ein Spielzimmer, ein Wellness oder alles andere sein kann, was der Eigentümer wählt. Im Erdgeschoss befinden sich zwei Schlafzimmer, jedes mit eigenem Bad und Zugang zu einer überdachten Terrasse. Im ersten Stock gibt es eine Toilette, einen offenen Raum mit Küche, ein Esszimmer und ein Wohnzimmer, von dem aus man Zugang zu einer überdachten Terrasse hat, von der man über eine Wendeltreppe hinunter in einen schönen Garten mit Schwimmbecken gelangt Pool und eine eingerichtete Liegewiese. Die Anlage verfügt über zwei Parkplätze. Die gesamte Anlage verfügt über Fußbodenheizung, während die Kühlung durch Klimaanlagen erfolgt. Im Gebäude werden hochwertige Materialien in bewährter Qualität verbaut. Eine Alarm- und Videoüberwachung, eine Autoladestation sowie eine Solaranlage auf dem Dach des Gebäudes sind vorbereitet. Architektonisch ansprechende Häuser werden in höchster Qualität gebaut, „schlüsselfertig“ verkauft und mit hochwertiger Ausstattung ausgestattet – Aluminiumschreinerei, Fußbodenheizung und Klimaanlage, beheizte Schwimmbäder, erstklassige italienische Keramik, vor allem -Klasse deutsches Parkett, Sanitärausstattung der Marken Villeroy&Boch, Grohe und Hansgrohe. Das Objekt befindet sich im Mehrwertsteuersystem. Die Fertigstellung wird für Ende 2023 erwartet.
MALINSKA und sein gesamtes Gebiet heißt Dubašnica und liegt im westlichen Teil der Insel Krk. Bis zum 15. Jahrhundert war Dubašnica fast ohne ständige Einwohner, ebenso wie das Gebiet südlich davon, fast bis zur Stadt Krk. Der Name der Gegend kommt von Eiche oder Eiche, weil es hier reiche Wälder und Weiden mit etwas Ackerland gibt. Dubašnica war bereits vor dem 12. Jahrhundert hauptsächlich ein Gebiet von Omišalj, aber ein Teil davon wurde auch von den Krk-Leuten gehalten. Malinska, als Zentrum von Dubašnica, war einst ein Inselhafen für den Export von Holz und ein beliebtes Touristenziel der Wiener Aristokratie. Es wurde im 15. Jahrhundert als guter Ankerplatz erwähnt, wo Schiffe bei starkem Wind, insbesondere aus dem Süden, Schutz suchten. Mit der Ankunft des Dampfschiffes im Jahr 1866 wandelte sich Malinska dank des milden Klimas mit etwa 260 Sonnentagen im Jahr vom Holzexporthafen zum Luftkurort. Heute ist es eines der stärksten Touristenziele der Insel, bekannt für seine zahlreichen Strände und die entwickelte Hotellerie sowie den Familientourismus. Unweit von Malinska liegt Porat, ein beschaulicher Ort, wo die Bevölkerung einst vom Fischfang lebte, heute aber der Tourismus die Hauptrolle übernommen hat. Der Name des Ortes kommt vom italienischen Wort porto, was Hafen bedeutet. Die Strände in Malinska und auf der Insel Krka gehören zu den besten in Kroatien. Einer der Vorteile der gegliederten und breiten Küste in Malinska ist, dass die Strände, wohin Sie auch gehen, nie weit entfernt sind. Die abwechslungsreiche Küste der Insel bietet eine große Vielfalt an Stränden: von Fels-, Sand- und Kiesstränden bis hin zu versteckten Buchten. Strände für Kinder, für Behinderte, Nichtschwimmer oder Senioren, Strände für Hunde, Strände für diejenigen, die natürlichen Schatten und die Nähe zu Parkplätzen suchen, Liebhaber von Sportaktivitäten und Strandbars, aber auch ein inoffizieller FKK-Strand - all das ist angeboten von Malinska. Die Strände in der Gemeinde Malinska-Dubašnica sind durch zahlreiche Spazierwege verbunden und bilden eine einzigartige natürliche Einheit. Die Anordnung der Strände variiert von gepflegten Betonplateaus über wilde, felsige, abenteuerliche Zugänge zum Meer, aber auch viele weitere versteckte und versteckte Badeplätze in kleinen Buchten, die einen Besuch wert sind. Die Strände erstrecken sich entlang des westlichen Teils der Insel Krk: Sie beginnen entlang der Paradiesstraße, die Malinska und Njivice verbindet, und enden hinter der romantischen Stadt Porto. Malinska ist eines der Reiseziele, das Familien mit Kindern am meisten lieben. Neben einer extrem guten Anbindung und Nähe, vor allem zu Rijeka und Zagreb, hat sich Malinska durch sein Angebot an Familien- und Hotelunterkünften, Stränden und Gastronomieeinrichtungen zu akzeptablen Preisen im Laufe der Jahre als TOP-Wahl für viele Familien etabliert. Darüber hinaus sind die Sicherheit und Ruhe, die Malinska bietet, ein besonderer Bonus für alle Eltern, die echten Urlaub suchen. Wenn Sie möchten, dass Ihre Kinder im Urlaub Zauber erleben, wo Sie alle sorglos spazieren gehen, Fahrrad fahren oder Tage am kristallklaren Meer verbringen können, umgeben von Natur ohne allzu viel Lärm - besuchen Sie Malinska.
Sehr geehrte Kunden, die Agenturprovision wird gemäß den Allgemeinen Geschäftsbedingungen www.dux-nekretnine.hr/opci-uvjeti-poslovanja berechnet
ID CODE: 16991