Exposé
Objektart:
Büro / Praxen
» Buerohaus
» Miete
Standort: Büro / Praxen »
Deutschland » Sachsen » Dresden, Stadt (Kreis) » Dresden
Erstbezug - Büro/Praxis und Ferienwohnen in kleinem Villenensemble Weßer Hirsch
GG
Das Wichtigste auf einen Blick:
| Objektnummer: | 8084803 |
Preise
| Miete für das Objekt | Auf Anfrage |
| Nebenkosten | 650 € |
| Heizkosten enthalten | Ja |
| Mietpreis pro m² | 14,5 € |
Flächen
| Bürofläche | 255 m² |
| Bürofläche | 255 m² |
| Fläche teilbar ab | 255 m² |
| Maklerprovision | provisionsfrei |
Objekt Adresse
Krügerstraße 22
01326 Dresden
Sonstige Angaben
| Zimmer | 6 |
| Verfügbar ab | 01.05.24 |
Objektbeschreibung
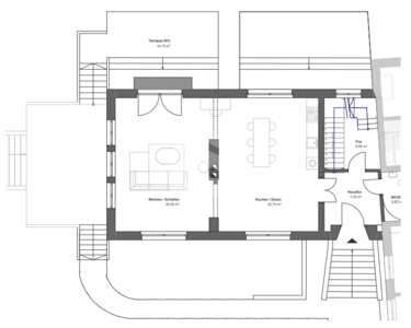
Das denkmalgeschützte Wohn- und Büroensemble in der Krügerstraße besteht aus 3 Häusern die separat erschlossen sind. Aktuell wird das Haus C (Südbau) liebevoll saniert. Aus den großen Fenstern hat man einen wundervollen Blick in den grünen Garten mit Brunnen in welchem man sich wundervoll erholen kann. Die Flächen können individuell nach dem Raumprofil des Mieters ausgebaut und ausgestattet werden. Insgesamt entstehen 255 m² Flächen auf 3 Geschossen:
Gartengeschoss mit 106 m² mit separatem Zugang und Terrassen
Erdgeschoss mit 86 m² mit Terrasse
Dachgeschoss mit 67,20 m² mit Loggia
zusätzlich Hobbyraum/Archiv/Garage im Haus B ca. 70 m² anmietbar
Die Flächen sind einzeln oder insgesamt anmietbar. Die Gartennutzung kann individuell vereinbart werden. Stellplätze für Besucher und Kunden befinden sich direkt vor den Haus. Bitte informieren Sie uns über Ihren gewünschten Flächenbedarf. Der Mietpreis richtet sich nach der Ausstattung und liegt ca. 11,00 EUR/m² - 16,50 EUR/m².
Gartengeschoss mit 106 m² mit separatem Zugang und Terrassen
Erdgeschoss mit 86 m² mit Terrasse
Dachgeschoss mit 67,20 m² mit Loggia
zusätzlich Hobbyraum/Archiv/Garage im Haus B ca. 70 m² anmietbar
Die Flächen sind einzeln oder insgesamt anmietbar. Die Gartennutzung kann individuell vereinbart werden. Stellplätze für Besucher und Kunden befinden sich direkt vor den Haus. Bitte informieren Sie uns über Ihren gewünschten Flächenbedarf. Der Mietpreis richtet sich nach der Ausstattung und liegt ca. 11,00 EUR/m² - 16,50 EUR/m².
Lage des Objektes
Das Anwesen befindet sich im reinen Villenviertel Loschwitz in Dresden. Das ehemalige Winzer- und Fischerdorf schmiegt sich an die grünen Hänge östlich der Elbe und erstreckt sich von den drei Elbschlössern aus stromaufwärts über den Körnernplatz bis hin zum Wachwitzer Fernsehturm. Im Osten wird Loschwitz/Wachwitz von der Dresdner Heide, einem ausgedehnten Waldgebiet, begrenzt. Auf dem liebevoll angelegten Eckgrundstück mit ca. 1.575 m² Fläche und einem schönen Bewuchs stehen Stellplätze zur Anmietung zur Verfügung. Vor dem Grundstück können Gäste und Besucher öffentliche Stellplätze nutzen. Eine Buslinie verkehrt direkt vor dem Gebäude.
Sonstige Informationen
Anmietung leicht gemacht?
Bitte sprechen Sie uns an, gern stellen wir Ihnen eine Auswahl geeigneter Flächenangebote zusammen. Für Fragen, ein persönliches Gespräch oder auch eine persönliche Terminvereinbarung stehen wir Ihnen gern telefonisch unter 0341 | 5643000 zur Verfügung.
Außenansicht
Bild 6
EG Grundriss
DG Grundriss
GG Grundriss