Exposé
Objektart:
Büro / Praxen
» Bueroflaeche
» Miete
Standort: Büro / Praxen »
Deutschland » Nordrhein-Westfalen » Düsseldorf, Stadt (Kreis) » Düsseldorf
Büroflächen provisionsfrei zur Miete. Sehr gute Anbindung an ÖPNV und das Autobahnnetz
Das Wichtigste auf einen Blick:
| Objektnummer: | 8053767 |
Preise
| Nebenkosten | keine Angabe |
| Mietpreis pro m² | 14 € |
Flächen
| Gesamtfläche | 3.962 m² |
| Ladenfläche | 1.800 m² |
| Verkaufsfläche | m² |
| Bürofläche | 375 m² |
| Fläche teilbar ab | 175 m² |
Objekt Adresse
40212 Düsseldorf
- Nordrhein-Westfalen
Sonstige Angaben
| Baujahr | 1958 |
| Verfügbar ab | kurzfristig |
| Anzahl der Etagen im Haus | 6 |
| Boden | Teppich |
| Fahrstuhl | Ja |
| Energieausweistyp | Verbrauch |
| Gültig bis | 2029-11-21 |
| Baujahr (laut Energieausweis) | 1958 |
| Heizungsart | Zentralheizung |
| Wesentlicher Energieträger | Gas |
| Energieträger/Befeuerung | Gas |
Objektbeschreibung
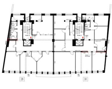
Über eine optisch zusammenhängende hellbraun changierende Natursteinfassade bilden die beiden Hausnummern 28 und 30 einen breiten 6-geschossigen Gebäudekomplex. Dessen Erdgeschoss ist geprägt von thematisch unterschiedlichen Einzelhandelsgeschäften. Über die beiden von der Straße zurückversetzten Hauseingänge gelangt man jeweils in einen repräsentativen Foyerbereich und von dort weiter mittels Aufzug oder Treppenhaus in die einzelnen Obergeschosse.
Ausstattung
Das Fassadenachsraster bietet vielfältige Möglichkeiten zur Raumaufteilung: Von Einzel- über Gruppen- bis zu Großraumbüros. Die aktuell anzutreffenden Grundrissvarianten können auf Mieterwunsch verändert werden und sind so auf diverse Anforderungen zukünftiger Nutzer entsprechend anpassbar. Bei Neubezug gehört es zur angenommenen Standardausstattung, dass in Büro-, Konferenz und Flurflächen stuhlrollengeeignete Bodenbeläge verlegt sind und an
den entsprechenden Stellen die Beleuchtung die Anforderungen an bildschirmarbeitsplatzgerechtes Arbeiten (BAP-geeignet) erfüllt. Zur Verlegung von DV-Verkabelungen sind in den Bürobereichen bereits Sockel bzw. Brüstungskabelkanäle angebracht.
den entsprechenden Stellen die Beleuchtung die Anforderungen an bildschirmarbeitsplatzgerechtes Arbeiten (BAP-geeignet) erfüllt. Zur Verlegung von DV-Verkabelungen sind in den Bürobereichen bereits Sockel bzw. Brüstungskabelkanäle angebracht.
Lage des Objektes
Durch die nahe gelegenen Bus- und Straßenbahnhaltestellen "Pempelforter Straße" und "Jacobistraße" sind sehr gute ÖPNV-Anbindungen gewährleistet. Die Haltestellen sind fußläufig zu erreichen und schaffen eine Verbindung zum Hauptbahnhof. Zur Verkehrs- und Lärmregulierung wird derzeit die U-Bahnlinie "Wehrhahn" gebaut. Die Autobahn erreicht man in 10 - 15 Minuten. Zur Nahversorgung stehen diverse Einkaufsmöglichkeiten in direkter Umgebung zur Verfügung.
Grundriss 2.OG Haus 30