Exposé
Objektart:
Büro / Praxen
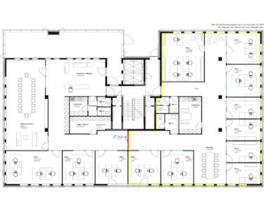
» Bueroflaeche
» Miete
Standort: Büro / Praxen »
Deutschland » Nordrhein-Westfalen » Düsseldorf, Stadt (Kreis) » Düsseldorf
AIRGATE: Nach-/Untervermietungsfläche I modern inkl. Kühlung I Tiefgarage
Das Wichtigste auf einen Blick:
| Objektnummer: | 8037514 |
Preise
| Nebenkosten | keine Angabe |
| Mietpreis pro m² | 17,5 € |
Flächen
| Gesamtfläche | 2.966,73 m² |
| Bürofläche | 822 m² |
Objekt Adresse
40468 Düsseldorf
- Nordrhein-Westfalen
Sonstige Angaben
| Baujahr | 2008 |
| Verfügbar ab | kurzfristig |
| Anzahl der Etagen im Haus | 6 |
| Boden | Teppich, Kunststoff |
| Fahrstuhl | Ja |
| Keller | Ja |
| Energieausweistyp | Verbrauch |
| Gültig bis | 2029-02-20 |
| Baujahr (laut Energieausweis) | 2008 |
| Energieeffizienzklasse | C |
| Heizungsart | Zentralheizung |
| Wesentlicher Energieträger | Gas |
| Energieträger/Befeuerung | Gas |
Objektbeschreibung
Das Gebäude AirGate bildet zusammen mit dem Maritim Hotel eine Torsituation das Entree zur Düsseldorf Airport City. Die exponierte Lage am Eingang der Airport City verleiht diesem Objekt einen ganz besonderen Flair. Die Architekten für diesen Solitär ist das Büro Chapman Taylor aus Düsseldorf. Die Gebäudekonzeption bietet auf den unteren Ebenen die Möglichkeit, ein mehrgeschossiges, voll verglastes Atrium zu bilden. In den Obergeschossen wurde ein großzügiger Wintergarten ebenfalls voll verglast herausgebildet. Das siebengeschossige Gebäude verfügt über ca. 5.100 m² BGF. Die energetisch und klimatisch optimierte Immobilie ist in Büroeinheiten ab 309 m² Bürofläche teilbar. Das Gebäude wurde nach dem schweizerischen Minergie-Standard errichtet, welcher zu einer besonders niedrigen Nebenkostenbelastung führt.
Ausstattung
- Attraktive Natursteinfassade mit zwei großzügigen Glasatrien
- Personenaufzug
- Attraktives Eingangsfoyer, lichte Raumhöhe10 m, mit werbewirksamen Einbaustrahlern
- Glasfassade
- Betonkernaktivierung und zusätzliche Kühlstränge für Splittgeräte
- Unterflurkonvektoren flächenbündig in den Boden integriert
- 3-fach verglaste Verbundfenster mit integriertem Sonnenschutz (elektrisch)
- helle Flächen durch angenehm hohen Fensteranteil
- lichte Raumhöhen von 3 m in den Büroflächen
- wertige, moderne WC Bereiche, z. B. Einbauwaschtische mit Natursteinplatte
- objekteigene Tiefgarage mit gutem Stellplatzschlüssel, 77 Stellplätze
- E-Parkpläze vor dem Objekt, 5 Stellplätze
- Personenaufzug
- Attraktives Eingangsfoyer, lichte Raumhöhe10 m, mit werbewirksamen Einbaustrahlern
- Glasfassade
- Betonkernaktivierung und zusätzliche Kühlstränge für Splittgeräte
- Unterflurkonvektoren flächenbündig in den Boden integriert
- 3-fach verglaste Verbundfenster mit integriertem Sonnenschutz (elektrisch)
- helle Flächen durch angenehm hohen Fensteranteil
- lichte Raumhöhen von 3 m in den Büroflächen
- wertige, moderne WC Bereiche, z. B. Einbauwaschtische mit Natursteinplatte
- objekteigene Tiefgarage mit gutem Stellplatzschlüssel, 77 Stellplätze
- E-Parkpläze vor dem Objekt, 5 Stellplätze
Lage des Objektes
Airport City direkt am Flughafen Düsseledorf und vis à vis zum Maritim Hotel. Von hier aus geneißt man eine perfekte Anbindung an die Bundesautobahn und gelangt in nur wenigen Minuten in die Düsseldorfer Innenstadt. Der ÖPNV ist ebenfalls nur wenige Schritte von Objekt entfernt.
Sonstige Informationen
Unmittelbarer Anschluß an die Autobahn;
durch People-Mover kann der ICE-Bahnhof in wenigen Minuten erreicht werden.
Ausreichend Besucherparkplätze vor dem Gebäude
Außen 1
Außen 2
Außen 3
Landesbetrieb NRW _ Teilung
EG 01.08.24