Exposé
Objektart:
Büro / Praxen
» Bueroflaeche
» Miete
Standort: Büro / Praxen »
Deutschland » Nordrhein-Westfalen » Mettmann (Kreis) » Ratingen
Moderne Büroflächen in Ratingen zu mieten
Das Wichtigste auf einen Blick:
| Objektnummer: | 8037532 |
Preise
| Nebenkosten | keine Angabe |
| Mietpreis pro m² | 13 € |
Flächen
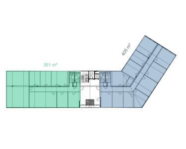
| Gesamtfläche | 4.303 m² |
| Bürofläche | 756 m² |
| Fläche teilbar ab | 351 m² |
Objekt Adresse
40882 Ratingen
- Nordrhein-Westfalen
Sonstige Angaben
| Baujahr | 2006 |
| Verfügbar ab | kurzfristig |
| Boden | Teppich |
| Fahrstuhl | Ja |
| Gültig bis | 2032-02-17 |
| Baujahr (laut Energieausweis) | 2006 |
| Heizungsart | Zentralheizung |
| Wesentlicher Energieträger | Erdgas Leicht |
Objektbeschreibung
Das moderne Bürogebäude wurde im Jahr 2006 erbaut und verfügt über einen repräsentativen Eingangsbereich, Personenaufzüge und eine hauseigene Tiefgarage, sowie Außenstellplätze.
Ausstattung
Die Flächen befinden sich in einem guten und gepflegten Zustand.
Ausstattungsmerkmale:
-Teeküche
-getrennte Damen- und Herren-WCs
-Sonnenschutz
-Serverraum
-Verkabelung vom Vormieter ist vorhanden
-Kühlung erfolgt über Betonkernaktivierung im Deckenbereich
Der Übergabezustand hinsichtlich Aufteilung und Ausstattung richtet dich nach der individuellen Absprache mit dem zukünftigen Mieter.
Ausstattungsmerkmale:
-Teeküche
-getrennte Damen- und Herren-WCs
-Sonnenschutz
-Serverraum
-Verkabelung vom Vormieter ist vorhanden
-Kühlung erfolgt über Betonkernaktivierung im Deckenbereich
Der Übergabezustand hinsichtlich Aufteilung und Ausstattung richtet dich nach der individuellen Absprache mit dem zukünftigen Mieter.
Lage des Objektes
Das Bürogebäude befindet sich an der Stadtgrenze zu Düsseldorf, in Ratingen-Ost. Der Standort verfügt über die A44 (Anschlussstelle Ratingen-Ost) über eine gute Anbindung an das regionale Autobahnnetz. Über die Autobahnkreuze Ratingen-Ost und Düsseldorf-Nord ist man auch an die Autobahnen A3 und A52 sehr gut angebunden. Nur 3 Gehminuten entfernt vom Gebäude befindet sich eine Bushaltestelle, an der die Linie 749 (Richtungen Düsseldorf-Klemensplatz und Mettmann-Stadtwald) verkehrt. Über den Bahnhof Ratingen-Ost ist man optimal an den öffentlichen Nah- und Regionalverkehr angeschlossen.
Sonstige Informationen
Stellplatzschlüssel: 1 Stellplatz / 24 m² Mietfläche
EG