Exposé
Objektart:
Büro / Praxen
» Bueroflaeche
» Miete
Standort: Büro / Praxen »
Deutschland » Nordrhein-Westfalen » Mettmann (Kreis) » Düsseldorf
Repräsentative Büroflächen provisionsfrei zur Miete I Exklusive Ausstattung I Glastrennwände
Aussenaufnahme
Das Wichtigste auf einen Blick:
| Objektnummer: | 7982545 |
Preise
| Nebenkosten | keine Angabe |
| Mietpreis pro m² | 14,5 € |
Flächen
| Nutzfläche | 3.018,38 m² |
| Gesamtfläche | 17.346,55 m² |
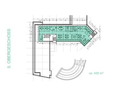
| Bürofläche | 2.728 m² |
| Fläche teilbar ab | 381 m² |
Objekt Adresse
40472 Düsseldorf
- Nordrhein-Westfalen
Sonstige Angaben
| Baujahr | 2002 |
| Verfügbar ab | sofort |
| Boden | Doppelboden |
| Terrassen | 1 |
| Fahrstuhl | Ja |
| Energieausweistyp | Bedarfsausweis |
| Gültig bis | 2029-09-30 |
| Baujahr (laut Energieausweis) | 2002 |
| Wesentlicher Energieträger | Gas |
| Energieträger/Befeuerung | Gas |
Objektbeschreibung
Der Büropark, welcher dieses Objekt beinhaltet, basiert auf der Verbindung von vier separaten, miteinander verbundenen Bauteilen. Besonderer Augenmerk wurde auf die Gestaltung der Außenanlagen gelegt. Die großzügigen Grünflächen im Innenhofbereich runden den Gesamteindruck des Gebäudeensembles ab.
Ausstattung
- Natursteinfassade mit Glaselementen
- Isolierverglasung mit Alu-Profilen
- Bandrasterdecken im Flurbereich
- Raumaufteilung flexibel
- 2 Personenaufzüge
- Abgependelte Leuchten
- Hohlraumboden- u. Doppelboden
- Sonnenschutz außenliegend
- Teppichboden
- Lüftung mit Spitzenlastkühlung
- Isolierverglasung mit Alu-Profilen
- Bandrasterdecken im Flurbereich
- Raumaufteilung flexibel
- 2 Personenaufzüge
- Abgependelte Leuchten
- Hohlraumboden- u. Doppelboden
- Sonnenschutz außenliegend
- Teppichboden
- Lüftung mit Spitzenlastkühlung
Lage des Objektes
Düsseldorf-Lichtenbroich; in unmittelbarer Nähe zum Flughafen Düsseldorf International (ca. 1,9 km).
Mit den Autobahnen A52, A44 und A3 liegt das Autobahnetz (Autobahnanschlußstelle Düsseldorf-Rath) direkt am Objekt.
Bushaltestellen, der U- und S-Bahnhof Düsseldorf-Unterrath sind fußläufig in ca. 5-8 Gehminuten zu erreichen.
Mit den Autobahnen A52, A44 und A3 liegt das Autobahnetz (Autobahnanschlußstelle Düsseldorf-Rath) direkt am Objekt.
Bushaltestellen, der U- und S-Bahnhof Düsseldorf-Unterrath sind fußläufig in ca. 5-8 Gehminuten zu erreichen.
Aussenaufnahme
Aussenaufnahme
Aussenaufnahme
Innenaufnahme
Innenaufnahme
Innenaufnahme
Innenaufnahme
Innenaufnahme
Innenaufnahme
Innenaufnahme
Innenaufnahme
3. OG
4. OG
5. OG