Exposé
Objektart:
Büro / Praxen
» Bueroflaeche
» Miete
Standort: Büro / Praxen »
Deutschland » Nordrhein-Westfalen » Mettmann (Kreis) » Ratingen
moderne Bürofläche in attraktivem Gewerbepark in Ratingen. Nur wenige Minuten zum Flughafen
Das Wichtigste auf einen Blick:
| Objektnummer: | 7971697 |
Preise
| Nebenkosten | keine Angabe |
| Mietpreis pro m² | 8 € |
Flächen
| Gesamtfläche | 350 m² |
| Bürofläche | 350 m² |
| Maklerprovision | noch in Klärung |
Objekt Adresse
40880 Ratingen
- Nordrhein-Westfalen
Sonstige Angaben
| Verfügbar ab | kurzfristig |
| Inserat befindet sich im Stockwerk | 0 |
Objektbeschreibung
Der Ratingen Businesspark bietet mit seinen kombinierten Hallen- und Büroeinheiten sowie zwei zusätzlichen Bürotrakten attraktive und funktionelle Flächen. Das Objekt bietet eine sehr gute Erreichbarkeit. Die Büroflächen verfügen über Fensterbankkanäle, abgehängte Decken mit integrierter BAP-gerechten Beleuchtung und Teppich als Bodenbelag.
Ausstattung
Das Objekt weist unter anderem folgende Austattung auf:
- Fensterbankkabelkanäle
- Teppichboden
- abgehängte Decke mit integrierter Beleuchtung
- Fensterbankkabelkanäle
- Teppichboden
- abgehängte Decke mit integrierter Beleuchtung
Lage des Objektes
Nördlich der Landeshauptstadt liegt der Ratingen Businesspark minutennah zum Flughafen Düsseldorf International und zu den Autobahnen A52, A44 und A3. Die Ratinger Innenstadt ist nur ca. 3 Autominuten entfernt.
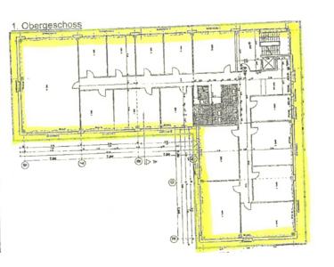
Grundriss 1.OG
Grundriss 3.OG
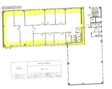
Grundriss
Parkplatz