Exposé
Objektart:
Büro / Praxen
» Bueroflaeche
» Miete
Standort: Büro / Praxen »
Deutschland » Nordrhein-Westfalen » Düsseldorf, Stadt (Kreis) » Düsseldorf
FRITZ - Repräsentative Büroflächen provisionsfrei zu mieten
Das Wichtigste auf einen Blick:
| Objektnummer: | 7955784 |
Preise
| Nebenkosten | keine Angabe |
| Mietpreis pro m² | 13,5 € |
Flächen
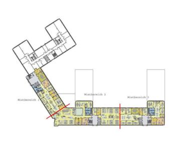
| Gesamtfläche | 18.608,7 m² |
| Bürofläche | 5.400 m² |
Objekt Adresse
40547 Düsseldorf
- Nordrhein-Westfalen
Sonstige Angaben
| Baujahr | 1993 |
| Verfügbar ab | kurzfristig |
| Terrassen | 1 |
| Fahrstuhl | Ja |
| Keller | Ja |
| Energieausweistyp | Bedarfsausweis |
| Gültig bis | 2019-06-25 |
| Baujahr (laut Energieausweis) | 1993 |
| Heizungsart | Zentralheizung |
| Wesentlicher Energieträger | Gas |
| Energieträger/Befeuerung | Gas |
Objektbeschreibung
Entdecken Sie Ihr zukünftiges Büro im renommierten Bürogebiet "Am Seestern" in Düsseldorf, einem der größten und dynamischsten Bürostandorte der Landeshauptstadt. Dieses beeindruckende 5-geschossige Büro- und Geschäftshaus bietet eine exquisite hochwertige Ausstattung und überzeugt durch seine massiv gebaute Struktur, die im Jahr 1993 errichtet wurde. Der Büropark Hansastern mitten im Standort garantiert eine erstklassige Lage in dieser belebten Geschäftsregion.
Die durchdachte und funktional gestaltete Architektur sorgt für ein repräsentatives und zeitgemäßes Erscheinungsbild, das nicht nur Ihre Kunden beeindrucken, sondern auch Ihren Mitarbeitenden ein hervorragendes Arbeitsumfeld bieten wird. Die hochwertigen Materialien und Systeme, die in den Eingangsbereichen sowie in den Büroräumen verwendet wurden, tragen maßgeblich zu einem angenehmen und produktiven Arbeitsklima bei.
Zu den besonderen Merkmalen dieses Bürogebäudes gehört ein Balkon, der Ihnen und Ihrem Team die Möglichkeit bietet, frische Luft zu schnappen und kurzzeitig dem geschäftigen Büroalltag zu entfliehen. Flexibilität wird großgeschrieben: Der Bodenbelag kann individuell nach Ihren Wünschen angepasst werden, um perfekt Ihren ästhetischen und funktionalen Anforderungen zu entsprechen.
Das Gebäude wird laufend saniert, um den höchsten Qualitätsstandards gerecht zu werden und hat die BREEAM-Zertifizierung „sehr gut“ erhalten. Diese Bürofläche ist kurzfristig verfügbar, sodass Sie zeitnah Ihre neuen Geschäftsräume beziehen und Ihre unternehmerischen Visionen verwirklichen können.
Nutzen Sie die Chance, Teil dieses erstklassigen Bürostandorts im Seestern zu werden, und gestalten Sie hier Ihre erfolgreiche Zukunft.
Die durchdachte und funktional gestaltete Architektur sorgt für ein repräsentatives und zeitgemäßes Erscheinungsbild, das nicht nur Ihre Kunden beeindrucken, sondern auch Ihren Mitarbeitenden ein hervorragendes Arbeitsumfeld bieten wird. Die hochwertigen Materialien und Systeme, die in den Eingangsbereichen sowie in den Büroräumen verwendet wurden, tragen maßgeblich zu einem angenehmen und produktiven Arbeitsklima bei.
Zu den besonderen Merkmalen dieses Bürogebäudes gehört ein Balkon, der Ihnen und Ihrem Team die Möglichkeit bietet, frische Luft zu schnappen und kurzzeitig dem geschäftigen Büroalltag zu entfliehen. Flexibilität wird großgeschrieben: Der Bodenbelag kann individuell nach Ihren Wünschen angepasst werden, um perfekt Ihren ästhetischen und funktionalen Anforderungen zu entsprechen.
Das Gebäude wird laufend saniert, um den höchsten Qualitätsstandards gerecht zu werden und hat die BREEAM-Zertifizierung „sehr gut“ erhalten. Diese Bürofläche ist kurzfristig verfügbar, sodass Sie zeitnah Ihre neuen Geschäftsräume beziehen und Ihre unternehmerischen Visionen verwirklichen können.
Nutzen Sie die Chance, Teil dieses erstklassigen Bürostandorts im Seestern zu werden, und gestalten Sie hier Ihre erfolgreiche Zukunft.
Ausstattung
- Einrichtung nach Mieterwunsch
- Bodenbelag nach Mieterwunsch
- Personenaufzug vorhanden (6 Stück)
- Repräsentative Eingangsbereiche
- Aluminium-Glas-Fassade mit thermisch getrennten Profilen
- Lichte Höhe: 2,75 (OG), 3,00 (EG)
- Raumtiefe: 5,4 m
- Rastermaß: 1,35 m
- Bodenlast: 1000 (EG), 500 (OG) kg/m²
- Abgehängte Decke
- Elektrischer, außenliegender Sonnenschutz
- Spiegelrasterleuchten bildschirmunterstützend in Deckenkonstruktion integriert
- Bodenbelag nach Mieterwunsch
- Personenaufzug vorhanden (6 Stück)
- Repräsentative Eingangsbereiche
- Aluminium-Glas-Fassade mit thermisch getrennten Profilen
- Lichte Höhe: 2,75 (OG), 3,00 (EG)
- Raumtiefe: 5,4 m
- Rastermaß: 1,35 m
- Bodenlast: 1000 (EG), 500 (OG) kg/m²
- Abgehängte Decke
- Elektrischer, außenliegender Sonnenschutz
- Spiegelrasterleuchten bildschirmunterstützend in Deckenkonstruktion integriert
Lage des Objektes
Das Seestern-Gebiet befindet sich im Norden des linksrheinischen Stadtgebietes. Aufgrund seiner geographischen Lage und hervorragenden Erschließung ist es möglich, über direkte Verbindungen das gesamte Stadtgebiet zu erreichen.
Ein starker Standort: Büropark Hansastern im Businessquartier Seestern. Restaurants, Top-Hotels, einkaufen in unmittelbarer Nähe. Exzellente Infrastruktur.
Ein starker Standort: Büropark Hansastern im Businessquartier Seestern. Restaurants, Top-Hotels, einkaufen in unmittelbarer Nähe. Exzellente Infrastruktur.
Regelgeschoss