Exposé
Objektart:
Büro / Praxen
» Bueroflaeche
» Miete
Standort: Büro / Praxen »
Deutschland » Bayern » Regensburg (Kreis) » Regenstauf
Büroeinheit - variable Aufteilung möglich
Bürofläche
Das Wichtigste auf einen Blick:
| Objektnummer: | 7927455 |
Preise
| Kaltmiete | 880 € |
| Kaltmiete (netto) | 880 € |
| Nebenkosten | keine Angabe |
| Kaution | 3 Nettomonatsmieten |
Flächen
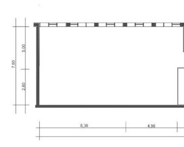
| Gesamtfläche | 100 m² |
| Bürofläche | 100 m² |
| Maklerprovision | 3 Nettomonatsmieten zzgl. MwSt. |
Objekt Adresse
93128 Regenstauf
Sonstige Angaben
| Baujahr | 1980 |
| Verfügbar ab | ab 01.03.2024 |
Objektbeschreibung
Es werden klimatisierte Büroräume in äußerst verkehrsgünstiger Lage zur Vermietung angeboten.
Die gepflegte, besonders helle Bürofläche hat eine Größe von ca. 100 m². Eine Teeküche steht zur Verfügung. Die Einheit kann noch nach Mieterwunsch variabel mit Trockenbauwänden aufgeteilt werden.
Das Büro hat zahlreiche Fenster mit elektrischen Jalousien und wird zusätzlich mit abgehängten Deckenstrahlern ausgeleuchtet. Beheizt wird mittels Gas-Zentralheizung.
Im Komplex befindet sich eine WC-Anlage.
Parkmöglichkeiten sind direkt vor dem Gebäude zahlreich vorhanden und können kostenfrei genutzt werden.
Das Gelände ist gesichert. Der umliegende Branchenmix macht diesen Standort zusätzlich interessant.
Gerne zeigen wir Ihnen diese attraktive Fläche die für vielerlei Nutzungen geeignet ist!
Die gepflegte, besonders helle Bürofläche hat eine Größe von ca. 100 m². Eine Teeküche steht zur Verfügung. Die Einheit kann noch nach Mieterwunsch variabel mit Trockenbauwänden aufgeteilt werden.
Das Büro hat zahlreiche Fenster mit elektrischen Jalousien und wird zusätzlich mit abgehängten Deckenstrahlern ausgeleuchtet. Beheizt wird mittels Gas-Zentralheizung.
Im Komplex befindet sich eine WC-Anlage.
Parkmöglichkeiten sind direkt vor dem Gebäude zahlreich vorhanden und können kostenfrei genutzt werden.
Das Gelände ist gesichert. Der umliegende Branchenmix macht diesen Standort zusätzlich interessant.
Gerne zeigen wir Ihnen diese attraktive Fläche die für vielerlei Nutzungen geeignet ist!
Ausstattung
* ca. 100 m² Nutzfläche
* helle Fläche durch viel Tageslicht
* variable Aufteilung nach Kundenwunsch
* Klimaanlage
* zahlreiche Stellplätze
* Nebenkosten-VZ wird je nach Nutzung neu festgelegt
* es können noch Lager-/ und Hallenflächen mit angemietet werden
* helle Fläche durch viel Tageslicht
* variable Aufteilung nach Kundenwunsch
* Klimaanlage
* zahlreiche Stellplätze
* Nebenkosten-VZ wird je nach Nutzung neu festgelegt
* es können noch Lager-/ und Hallenflächen mit angemietet werden
Lage des Objektes
Der Markt Regenstauf liegt 13 km nördlich von Regensburg, im Regierungsbezirk Oberpfalz, Landkreis Regensburg, und ist mit seinen 15.000 Einwohnern und einer Fläche von 100 Quadratkilometern größte Gemeinde des Landkreises Regensburg.
Regenstauf ist durch die A 93 bestens an den Fernverkehr angebunden.
Vor allem die Ansiedlung von Industrie-, Handwerks- und Handelsbetrieben und die Ausweisung von Gewerbe- und Wohnbaugebieten vermitteln einen Eindruck von der Leistungsfähigkeit der zum Mittelzentrum heranwachsenden Großgemeinde. Der Markt Regenstauf ist auch Standort für modernen Einzelhandelsgeschäfte und das leistungsfähige Handwerk.
Regenstauf ist durch die A 93 bestens an den Fernverkehr angebunden.
Vor allem die Ansiedlung von Industrie-, Handwerks- und Handelsbetrieben und die Ausweisung von Gewerbe- und Wohnbaugebieten vermitteln einen Eindruck von der Leistungsfähigkeit der zum Mittelzentrum heranwachsenden Großgemeinde. Der Markt Regenstauf ist auch Standort für modernen Einzelhandelsgeschäfte und das leistungsfähige Handwerk.
Sonstige Informationen
Energieausweis ist in Erstellung.
Bitte beachten Sie, dass für die im Exposé aufgeführten Angaben keine Haftung übernommen wird.
Wir bieten Ihnen gerne an, sich bei einem persönlichen Termin in unserer Immobilien Lounge
unverbindlich über dieses und weitere interessante Objekte zu informieren.
Vereinbaren Sie einfach einen Termin oder nennen Sie uns gleich einen Terminvorschlag!
Grundriss