Exposé
Objektart:
Büro / Praxen
» Bueroflaeche
» Miete
Standort: Büro / Praxen »
Deutschland » Bayern » München, Landeshauptstadt (Kreis) » München
AIGNER - Perlach - Großzügige Büroflächen mit guter Anbindung
Online
Das Wichtigste auf einen Blick:
| Objektnummer: | 7911257 |
Preise
| Warmmiete | 3.689,4 € |
| Kaltmiete (netto) | 3.096 € |
| Nebenkosten | 593,4 € |
| Mietpreis pro m² | 12 € |
Flächen
| Bürofläche | 258 m² |
Objekt Adresse
81737 München
Sonstige Angaben
| Baujahr | 2002 |
| Verfügbar ab | keine Angabe |
| Inserat befindet sich im Stockwerk | 2 |
| Energieträger/Befeuerung | Gas |
Objektbeschreibung
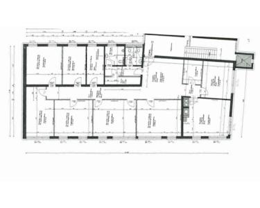
Die angebotene Einheit befindet sich im zweiten Obergeschoss eines im Jahr 2002 errichteten Gebäudes und ist sowohl über das Treppenhaus als auch über einen Personenaufzug bequem erreichbar.
Aktuell ist die Bürofläche in acht separate Einzelbüros unterteilt. Großzügige Fensterfronten sorgen für eine optimale Tageslichtversorgung und ein angenehmes Raumgefühl. Eine elektrische Außenbeschattung an allen Fenstern bietet zusätzlichen Komfort.
Zur Ausstattung gehören getrennte WC-Anlagen für Damen und Herren, eine Teeküche sowie ein Serverraum. Die Flächen sind mit einer strukturierten CAT-6-Verkabelung ausgestattet, die über Kabelkanäle in die einzelnen Büroräume geführt wird. Zudem verfügt das Gebäude über einen Glasfaseranschluss von M-net mit einer Übertragungsrate von 25 Mbit/s.
Die Mindestvertragslaufzeit beträgt fünf Jahre. Ein kurzfristiger Bezug ist nach Absprache möglich.
Aktuell ist die Bürofläche in acht separate Einzelbüros unterteilt. Großzügige Fensterfronten sorgen für eine optimale Tageslichtversorgung und ein angenehmes Raumgefühl. Eine elektrische Außenbeschattung an allen Fenstern bietet zusätzlichen Komfort.
Zur Ausstattung gehören getrennte WC-Anlagen für Damen und Herren, eine Teeküche sowie ein Serverraum. Die Flächen sind mit einer strukturierten CAT-6-Verkabelung ausgestattet, die über Kabelkanäle in die einzelnen Büroräume geführt wird. Zudem verfügt das Gebäude über einen Glasfaseranschluss von M-net mit einer Übertragungsrate von 25 Mbit/s.
Die Mindestvertragslaufzeit beträgt fünf Jahre. Ein kurzfristiger Bezug ist nach Absprache möglich.
Lage des Objektes
Der 16. Stadtbezirk Ramersdorf-Perlach befindet sich im Südosten vom Stadtzentrum und erstreckt sich von der Stadtgrenze bis zum Innenstadtbereich in Höhe des Ostbahnhofs. Der Stadtbezirk hat mit ca. 108.000 Einwohnern bereits Großstadtdimensionen erreicht und ist dadurch der bevölkerungsstärkste Stadtbezirk Münchens.
Das direkte Objektumfeld besteht aus einer Mischung aus Wohnbebauung, Handwerksbetrieben und höherwertigem Gewerbe. Gleich zwei Supermärkte, einer davon befindet sich direkt im Objekt, bieten Möglichkeiten zur Nahversorgung. Für die Bedürfnisse, die darüber hinausgehen bietet sich das Einkaufszentrum Perlach Passagen PEP in 6 Fahrminuten Entfernung an. Die Bushaltestelle Oscar-Maria-Graf-Ring am Karl-Marx Ring liegt 3 Gehminuten bzw. 280m entfernt. Über den Bus ist die U-Bahn Haltestelle Neuperlach Zentrum innerhalb von 5 Fahrminuten erreichbar, die wiederum bietet Anschluss zum Hauptbahnhof innerhalb von 15 Fahrminuten. Der Anschluss via PKW ist sowohl in die Innenstadt als auch auf den Autobahnring schnell gegeben.
Das direkte Objektumfeld besteht aus einer Mischung aus Wohnbebauung, Handwerksbetrieben und höherwertigem Gewerbe. Gleich zwei Supermärkte, einer davon befindet sich direkt im Objekt, bieten Möglichkeiten zur Nahversorgung. Für die Bedürfnisse, die darüber hinausgehen bietet sich das Einkaufszentrum Perlach Passagen PEP in 6 Fahrminuten Entfernung an. Die Bushaltestelle Oscar-Maria-Graf-Ring am Karl-Marx Ring liegt 3 Gehminuten bzw. 280m entfernt. Über den Bus ist die U-Bahn Haltestelle Neuperlach Zentrum innerhalb von 5 Fahrminuten erreichbar, die wiederum bietet Anschluss zum Hauptbahnhof innerhalb von 15 Fahrminuten. Der Anschluss via PKW ist sowohl in die Innenstadt als auch auf den Autobahnring schnell gegeben.
Sonstige Informationen
Energiekennwert Wärme: 138,9 kWh/(m²*a)
Energie mit Warmwasser: Nein
Befeuerung/Energieträger: Erdgas leicht
Energieausweistyp: Bedarfsausweis
Energiekennwert Strom: 119,8 kWh/(m²*a)
Baujahr: 2002
Empfang
Flur
Büro 1
Büro 2
Büro3
Teeküche
Grundriss