Exposé
Objektart:
Einzelhandel
» Ladenlokal
» Miete
Standort: Einzelhandel »
Deutschland » Sachsen » Leipzig, Stadt (Kreis) » Leipzig
großzügiger Laden mit Potential
Hausansicht
Angeboten von:
Marko Künne Immobilien
Käthe-Kollwitz-Str. 58c
04109 Leipzig
Deutschland
Telefon:+49(0)341-4429566
Fax:+49(0)341-2253930
www.kuenne-immobilien.de
Ansprechpartner/in
Marko Künne Immobilien
Katrin Glöckner
| Telefon: | 0176-60745729 |
| Fax: | 0341 2253930 |
Das Wichtigste auf einen Blick:
| Objektnummer: | 7889142 |
Preise
| Kaltmiete | 1.236 € |
| Warmmiete | 1.648 € |
| Nebenkosten | 412 € |
| Heizkosten enthalten | Ja |
| Kaution | € 3957,50 |
Flächen
| Gesamtfläche | 137,28 m² |
Objekt Adresse
Rudolph-Herrmann-Straße 2
04299 Leipzig
Sonstige Angaben
| Verfügbar ab | nach Renovierung |
| Inserat befindet sich im Stockwerk | 0 |
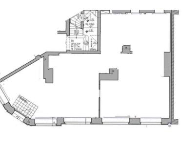
Objektbeschreibung
Das Objekt ist derzeit komplett entkernt.
Änderungen im Grundriss sind teilweise möglich.
Änderungen im Grundriss sind teilweise möglich.
Lage des Objektes
Der Leipziger Stadtteil Stötteritz liegt etwa 4 km südöstlich vom Stadtzentrum. Stötteritz ist ein Stadtviertel in Leipzig, das sich weniger großstädtisch zeigt, sondern eher von kleinstädtischen oder sogar dörflichen Strukturen gekennzeichnet ist. Es wird durch die Innenstadt mit der Tramlinie 4 verbunden.
Das Stadtviertel beherbergt im Zentrum eine schöne Barockkirche, um die sich der kleinstädtisch-vertraute Charakter von Stötteritz entfaltet. Ein alter Gutshof, der als soziokulturelles Begegnungszentrum genutzt wird, befindet sich gleich gegenüber. Das Stötteritzer Wäldchen grenzt unmittelbar in Richtung Norden an die Stötteritzer Straßenzüge an und bietet als Naherholungsgebiet genügend Raum zur Entspannung und Gestaltung der freien Zeit.
Das Stadtviertel beherbergt im Zentrum eine schöne Barockkirche, um die sich der kleinstädtisch-vertraute Charakter von Stötteritz entfaltet. Ein alter Gutshof, der als soziokulturelles Begegnungszentrum genutzt wird, befindet sich gleich gegenüber. Das Stötteritzer Wäldchen grenzt unmittelbar in Richtung Norden an die Stötteritzer Straßenzüge an und bietet als Naherholungsgebiet genügend Raum zur Entspannung und Gestaltung der freien Zeit.
Sonstige Informationen
Folgende Unterlagen werden angefordert/benötigt:
- Selbstauskunft
- Schufaeinwilligung
- Vorvermieterbescheinigung
- Einkommensnachweise
- Nachweis einer Haftpflichtversicherung
- Datenschutzeinwilligung
- Gewerbeanmeldung oder Handelsregisterauszug
Die Formulare finden Sie unter www.kuenne-immobilien.de/vermietung.
Der Mietvertrag wird mit einer Mindestlaufzeit von drei Jahren und einer Staffelmiete abgeschlossen.
Grundriss