Exposé
Objektart:
Wohnung
» Maisonette
» Kauf
Standort: Wohnung »
Deutschland » Sachsen » Delitzsch (Kreis) » Taucha
Bezugsfrei ab 01.10.2025 - Maisonettewohnung mit großem Balkon in Stadtnähe
Hausanblick
Angeboten von:
Marko Künne Immobilien
Käthe-Kollwitz-Str. 58c
04109 Leipzig
Deutschland
Telefon:+49(0)341-4429566
Fax:+49(0)341-2253930
www.kuenne-immobilien.de
| Telefon: | 0341 442 9566 |
| Fax: | 0341 2253930 |
Das Wichtigste auf einen Blick:
| Objektnummer: | 7879671 |
Preise
| Kaufpreis | 167.000 € |
| Nebenkosten | keine Angabe |
| Kaufpreis pro m² | 2190,74 € |
Flächen
| Wohnfläche | 76,23 m² |
Objekt Adresse
04425 Taucha
- Sachsen
Sonstige Angaben
| Baujahr | 1999 |
| Letzte Modernisierung | 1999 |
| Zimmer | 3 |
| Verfügbar ab | nach Vereinbarung |
| Anzahl der Etagen im Haus | 5 |
| Inserat befindet sich im Stockwerk | 4 |
| Boden | Fliesen, Laminat |
| Balkone | 1 |
| Fahrstuhl | Ja |
| Keller | Ja |
| Wesentlicher Energieträger | Erdgas Leicht |
Objektbeschreibung
Bei dieser Immobilie handelt es sich um eine geräumige Maisonettewohnung im Stadtnah-gelegenen Merkwitz bei Taucha. Das Gebäude wurde 1860 erbaut, im Jahre 1999 vollsaniert und befindet sich in einem gepflegten Zustand.
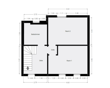
Die Wohneinheit verfügt über eine Wohnfläche von ca. 76,23 m², bestehend aus 3-Zimmern und einem schönes Tageslichtbad mit Badewanne. Die Küche und das Wohnzimmer befinden sich auf der unteren Etage. Das Schlafzimmer, Kinderzimmer und Bad erreichen sie auf der oberen Etage. Die Wohnräume sind mit Laminat und das Badezimmer sowie Küche mit Fliesen ausgestattet.
Das Highlight der Wohnung ist der große Balkon, welcher auch nach stressigen Arbeitstagen zur Entspannung einlädt. Für genügend Stauraum und der Unterstellung von Fahrrädern sorgt das eigene Kellerabteil.
Das Mietverhältnis wurde zum 30.09.2025 gekündigt.
' frisch, engagiert, solide '
Die Künne Immobilien Gruppe ist professioneller Dienstleister der Immobilienbranche und steht Ihnen in den Bereichen Projektentwicklung, Verkauf, Vermietung, Verwaltung und Facility Management zur Verfügung. Für weitere Informationen und Einblicke besuchen Sie unsere Homepage: www.kuenne-gruppe.de
Sie wollen Ihre Immobilie verkaufen? Egal ob Mehrfamilien- oder Einfamilienhaus, Eigentumswohnung, Grundstück oder Neubau- bzw. Bauträgerprojekt. Wir vermitteln kompetent, transparent und zügig Ihre Immobilie, bundesweit.
Die Wohneinheit verfügt über eine Wohnfläche von ca. 76,23 m², bestehend aus 3-Zimmern und einem schönes Tageslichtbad mit Badewanne. Die Küche und das Wohnzimmer befinden sich auf der unteren Etage. Das Schlafzimmer, Kinderzimmer und Bad erreichen sie auf der oberen Etage. Die Wohnräume sind mit Laminat und das Badezimmer sowie Küche mit Fliesen ausgestattet.
Das Highlight der Wohnung ist der große Balkon, welcher auch nach stressigen Arbeitstagen zur Entspannung einlädt. Für genügend Stauraum und der Unterstellung von Fahrrädern sorgt das eigene Kellerabteil.
Das Mietverhältnis wurde zum 30.09.2025 gekündigt.
' frisch, engagiert, solide '
Die Künne Immobilien Gruppe ist professioneller Dienstleister der Immobilienbranche und steht Ihnen in den Bereichen Projektentwicklung, Verkauf, Vermietung, Verwaltung und Facility Management zur Verfügung. Für weitere Informationen und Einblicke besuchen Sie unsere Homepage: www.kuenne-gruppe.de
Sie wollen Ihre Immobilie verkaufen? Egal ob Mehrfamilien- oder Einfamilienhaus, Eigentumswohnung, Grundstück oder Neubau- bzw. Bauträgerprojekt. Wir vermitteln kompetent, transparent und zügig Ihre Immobilie, bundesweit.
Lage des Objektes
Taucha ist eine Kleinstadt im Nordwesten Sachsens, nordöstlich von Leipzig, an dessen Stadtgebiet es direkt angrenzt. Sie liegt in der Leipziger Tieflandbucht. Durch die Stadt fließt die Parthe, deren Flussaue ein ausgedehntes Landschaftsschutzgebiet um die Stadt bildet.
Einkaufsmöglichkeiten und andere Geschäfte des täglichen Bedarfs sind in wenigen Minuten fußläufig zu erreichen.
Die Leipziger Innenstadt ist über Straßenbahn und Bus, wie auch mit dem PKW ebenfalls in wenigen Minuten zu erreichbar. Die Autobahnauffahrt zur A14 (Halle-Dresden) und die B87 sind nur einen "Steinwurf" entfernt. Die Entfernung zum Flughafen Leipzig-Halle beträgt ca. 15 km und zur "Neuen Messe Leipzig" ca. 12 km.
Einkaufsmöglichkeiten und andere Geschäfte des täglichen Bedarfs sind in wenigen Minuten fußläufig zu erreichen.
Die Leipziger Innenstadt ist über Straßenbahn und Bus, wie auch mit dem PKW ebenfalls in wenigen Minuten zu erreichbar. Die Autobahnauffahrt zur A14 (Halle-Dresden) und die B87 sind nur einen "Steinwurf" entfernt. Die Entfernung zum Flughafen Leipzig-Halle beträgt ca. 15 km und zur "Neuen Messe Leipzig" ca. 12 km.
Hausansicht
Hauseingang
Hausflur
Rückseite
Untergeschoss
Obergeschoss
Spielplatz
Umgebung
Flurkarte
Umgebungsplan
UmgebungsplanMicro