Exposé
Objektart:
Haus
» Einfamilienhaus
» Kauf
Standort: Haus »
Deutschland » Sachsen-Anhalt » Anhalt-Bitterfeld (Kreis) » Bitterfeld - Wolfen
FIBAV Massiv Stadthaus 133 m² - 4 Zi.- inkl. LWWP, FBH & Grundstück - 912 m² - in Krondorf
Jubiläums - Stadtvilla
Das Wichtigste auf einen Blick:
| Objektnummer: | 7864651 |
Preise
| Kaufpreis | 361.980 € |
| Nebenkosten | keine Angabe |
Flächen
| Wohnfläche | 133 m² |
| Nutzfläche | 133,59 m² |
| Grundstücksfläche | 912 m² |
Objekt Adresse
06766 Bitterfeld - Wolfen
Sonstige Angaben
| Baujahr | 2022 |
| Zimmer | 4 |
| Verfügbar ab | 2022 |
| Bad | 1 |
| Anzahl der Etagen im Haus | 2 |
| Bad | 1 |
| Bad | Dusche, Wanne, Fenster |
| Boden | Fliesen, Estrich |
| Dachboden | Ja |
| Energieausweistyp | Bedarfsausweis |
| Gültig bis | 2029-07-07 |
| Energieeffizienzklasse | A+ |
| Energietyp | KfW-55 |
| Endenergiebedarf | 38.50 kWh/(m²*a) |
| Heizungsart | Fußbodenheizung |
| Wesentlicher Energieträger | Luftwp |
| Energieträger/Befeuerung | Luft-Wärme-Pumpe |
Objektbeschreibung
Ein Blickfang in jedem Baugebiet, Stein auf Stein.... Ein Fibav - Massivhaus
Ein besonders schönes Haus mit viel Platz für die ganze Familie und ein echter Magnet fürs Auge.
Ein überzeugender Blickfang auf jedem Baugrundstück. !
Fibav- Massivhaus GmbH - Seit 1991 ,, Massiv " am Markt.
Bauen aus einer Hand
Immobilienprofi mit 31 Jahren Erfahrung
Massivhäuser Stein auf Stein Bauen mit einer "Qualität ohne Kompromisse"
Nachhaltiges, energieeffizientes Bauen mit modernster deutscher Technik
- Errichtung nach neuester EnEV 2016 - KfW-55 auch als 40 und 40 + möglich
- schlüsselfertiges Haus mit wärmegedämmter Bodenplatte
- Vaillant LWWP ohne Außengerät - inklusive intergrierter Lüftungsanlage
- inklusive Fußbodenheizung
- Bad mit Dusche und Badewanne
- Gäste WC
- 5-Sterne-Fenster Reference mit 3-fach-Wärmeschutzverglasung der Fa. Brömse
inkl. umlaufender Pilzkopfverriegelung
Bauleistungs Informationen
+ massive Außenwände
+ 3-Fachverglasung und Hi-Tech Fensterrahmen (Ug-Wert 0,4W/m²K)
+Walmdach
+ garantierte Bauzeit von 8 Monaten
+ 10 Festpreisgarantie
+ Niedrigenergiehaus Haus nach EnEV 2016 - KFW 55 (als 40 und 40 + möglich)
+ Wärmedämm-Putzfassade
+ Blower-Door-Test
+ Erdarbeiten und Thermobodenplatte
+ Wohnfläche nach WoFLV.: ca. 133,59 m²
+ Nutzfläche ca. 133 m²
+ inkl. Sanitärobjekte
+ per App steurbare Heizungstechnik von Vaillant
+ Vaillant LWWP ohne Außengerät - inklusive intergrierter Lüftungsanlage
+ inklusive Fußbodenheizung
inkl. Architektenleistung, Statik, Bauplanung und Bauleitung!
Viele Versicherungen bereits enthalten!
Das Haus ist mit Eigenleistungen : Sie müssen nur noch Fußbodenbeläge, Maler- und Tapezierarbeiten selbst leisten! Oder: auch von uns machen lassen.
Die Bäder und die Küche verfügen bereits über Boden und Wandfliesen bzw. Sockelleisten. Für die Eigenleistungen müssen Sie maximal 10.000,00 € einplanen.
Ein besonders schönes Haus mit viel Platz für die ganze Familie und ein echter Magnet fürs Auge.
Ein überzeugender Blickfang auf jedem Baugrundstück. !
Fibav- Massivhaus GmbH - Seit 1991 ,, Massiv " am Markt.
Bauen aus einer Hand
Immobilienprofi mit 31 Jahren Erfahrung
Massivhäuser Stein auf Stein Bauen mit einer "Qualität ohne Kompromisse"
Nachhaltiges, energieeffizientes Bauen mit modernster deutscher Technik
- Errichtung nach neuester EnEV 2016 - KfW-55 auch als 40 und 40 + möglich
- schlüsselfertiges Haus mit wärmegedämmter Bodenplatte
- Vaillant LWWP ohne Außengerät - inklusive intergrierter Lüftungsanlage
- inklusive Fußbodenheizung
- Bad mit Dusche und Badewanne
- Gäste WC
- 5-Sterne-Fenster Reference mit 3-fach-Wärmeschutzverglasung der Fa. Brömse
inkl. umlaufender Pilzkopfverriegelung
Bauleistungs Informationen
+ massive Außenwände
+ 3-Fachverglasung und Hi-Tech Fensterrahmen (Ug-Wert 0,4W/m²K)
+Walmdach
+ garantierte Bauzeit von 8 Monaten
+ 10 Festpreisgarantie
+ Niedrigenergiehaus Haus nach EnEV 2016 - KFW 55 (als 40 und 40 + möglich)
+ Wärmedämm-Putzfassade
+ Blower-Door-Test
+ Erdarbeiten und Thermobodenplatte
+ Wohnfläche nach WoFLV.: ca. 133,59 m²
+ Nutzfläche ca. 133 m²
+ inkl. Sanitärobjekte
+ per App steurbare Heizungstechnik von Vaillant
+ Vaillant LWWP ohne Außengerät - inklusive intergrierter Lüftungsanlage
+ inklusive Fußbodenheizung
inkl. Architektenleistung, Statik, Bauplanung und Bauleitung!
Viele Versicherungen bereits enthalten!
Das Haus ist mit Eigenleistungen : Sie müssen nur noch Fußbodenbeläge, Maler- und Tapezierarbeiten selbst leisten! Oder: auch von uns machen lassen.
Die Bäder und die Küche verfügen bereits über Boden und Wandfliesen bzw. Sockelleisten. Für die Eigenleistungen müssen Sie maximal 10.000,00 € einplanen.
Ausstattung
Mit Ihnen zusammen planen wir Ihr Traumhaus auf ein Grundstück Ihrer Wahl.
Z.B. unsere Jubiläums Stadtvilla - Zweigeschossig - 133 m² & 4 Zimmer.
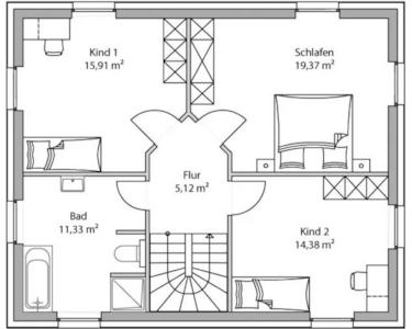
In diesem Haus genießen Sie einen Komfort, den Ihnen für gewöhnlich nur ein größeres Haus bieten kann. Viel Platz und genügend Stauraum für die Familie. Von der Haustür bis unter den Dachfirst ist dies ein Haus für die junge Familie. Die Gestaltung des Erdgeschosses bietet Ihnen die Möglichkeit eines gemeinschaftlichen Zusammenlebens. Platz für einen großen Esstisch und das Familiensofa sorgen dafür, dass Sie hier viele Aktivitäten mit der Familie gestalten können. Auch an Tagen die nicht zum rausgehen einladen. Die Küche ist groß genug um einen Frühstückstisch aufzustellen oder an Weihnachten als Backstube zu dienen. Kinder freuen sich über die 2 identischen Zimmer im Obergeschoss, denn so kann es keinen Streit geben. Auch das Schlafzimmer verfügt über genügend Stellfläche für ein Bett und Schränke. Und das Beste: Sie können daran auch etwas ändern. Gerne Planen wir mit Ihnen alle Ihre Vorstellungen und Wünsche in ein individuelles Bauvorhaben ein. Ob Ihr Haus größer oder kleiner werden soll, eine Dusche im Gäste-WC braucht, wir helfen Ihnen dabei Ihren Traum vom perfekten Eigenheim zu realisieren. Damit Ihr Haus genau so individuell wird wie Sie, der Bauherr! Ein weiterer Vorteil des Hauses ist sein Preis/Leistungsverhältnis, welches gerade jungen Familien genügend Spielraum bietet in Kombination mit der modernen Bauart die schon ab dem Einzug beim Sparen von Energie hilft. Außerdem verfügen unsere Häuser über Vaillant Technik der neuesten Generation . !!!
Hauspreis - mit Eigenleistungen = 247.980,00 €
Grundstück - provisionsfrei = 114.000,00 €
Gesamtpreis - inkl.Grundstück = 361.980,00 €
Zu diesem Hauspreis kommen noch die Posten dazu, welche Sie dazubuchen möchten.
- Baunebenkosten nicht vergessen und einplanen - ca. 35.000,00 .€
Eine individuelle Planung ist bei uns kostenlos.
Der oben angegebene Verkaufspreis versteht sich für die schlüsselfertige Erstellung des Hauses gemäß unserer FIBAV Bau- Und Leistungsbeschreibung. Für die Eigenleistungen müssen Sie maximal 10.000,00 € einplanen.
- Errichtung nach neuester EnEV 2016 - KFW 55 auch als 40 und 40 + möglich
- schlüsselfertiges Haus mit wärmegedämmter Bodenplatte
+ per App steurbare Heizungstechnik von Vaillant
+ Vaillant LWWP - ohne Außengerät - inklusive intergrierter Lüftungsanlage
+ inklusive Fußbodenheizung
- Gäste-WC + Dusche und Bad + Badewanne
- inkl. Fliesen in den Räumen: Küche, Diele, Gäste-WC, Bad, HAR
- 5-Sterne-Fenster Reference mit 3-fach-Wärmeschutzverglasung der Fa. Brömse
- CEPAL beschichtete Innentüren
- Smart Home-Paket der Firma Somfy
Das Grundstück ist bereits im Gesamtpreis enthalten und wird kostenlos an den neuen Bauherren vermittelt.
Es ist 912 m² groß und kostet 114.000,00 € - provisionsfrei
Z.B. unsere Jubiläums Stadtvilla - Zweigeschossig - 133 m² & 4 Zimmer.
In diesem Haus genießen Sie einen Komfort, den Ihnen für gewöhnlich nur ein größeres Haus bieten kann. Viel Platz und genügend Stauraum für die Familie. Von der Haustür bis unter den Dachfirst ist dies ein Haus für die junge Familie. Die Gestaltung des Erdgeschosses bietet Ihnen die Möglichkeit eines gemeinschaftlichen Zusammenlebens. Platz für einen großen Esstisch und das Familiensofa sorgen dafür, dass Sie hier viele Aktivitäten mit der Familie gestalten können. Auch an Tagen die nicht zum rausgehen einladen. Die Küche ist groß genug um einen Frühstückstisch aufzustellen oder an Weihnachten als Backstube zu dienen. Kinder freuen sich über die 2 identischen Zimmer im Obergeschoss, denn so kann es keinen Streit geben. Auch das Schlafzimmer verfügt über genügend Stellfläche für ein Bett und Schränke. Und das Beste: Sie können daran auch etwas ändern. Gerne Planen wir mit Ihnen alle Ihre Vorstellungen und Wünsche in ein individuelles Bauvorhaben ein. Ob Ihr Haus größer oder kleiner werden soll, eine Dusche im Gäste-WC braucht, wir helfen Ihnen dabei Ihren Traum vom perfekten Eigenheim zu realisieren. Damit Ihr Haus genau so individuell wird wie Sie, der Bauherr! Ein weiterer Vorteil des Hauses ist sein Preis/Leistungsverhältnis, welches gerade jungen Familien genügend Spielraum bietet in Kombination mit der modernen Bauart die schon ab dem Einzug beim Sparen von Energie hilft. Außerdem verfügen unsere Häuser über Vaillant Technik der neuesten Generation . !!!
Hauspreis - mit Eigenleistungen = 247.980,00 €
Grundstück - provisionsfrei = 114.000,00 €
Gesamtpreis - inkl.Grundstück = 361.980,00 €
Zu diesem Hauspreis kommen noch die Posten dazu, welche Sie dazubuchen möchten.
- Baunebenkosten nicht vergessen und einplanen - ca. 35.000,00 .€
Eine individuelle Planung ist bei uns kostenlos.
Der oben angegebene Verkaufspreis versteht sich für die schlüsselfertige Erstellung des Hauses gemäß unserer FIBAV Bau- Und Leistungsbeschreibung. Für die Eigenleistungen müssen Sie maximal 10.000,00 € einplanen.
- Errichtung nach neuester EnEV 2016 - KFW 55 auch als 40 und 40 + möglich
- schlüsselfertiges Haus mit wärmegedämmter Bodenplatte
+ per App steurbare Heizungstechnik von Vaillant
+ Vaillant LWWP - ohne Außengerät - inklusive intergrierter Lüftungsanlage
+ inklusive Fußbodenheizung
- Gäste-WC + Dusche und Bad + Badewanne
- inkl. Fliesen in den Räumen: Küche, Diele, Gäste-WC, Bad, HAR
- 5-Sterne-Fenster Reference mit 3-fach-Wärmeschutzverglasung der Fa. Brömse
- CEPAL beschichtete Innentüren
- Smart Home-Paket der Firma Somfy
Das Grundstück ist bereits im Gesamtpreis enthalten und wird kostenlos an den neuen Bauherren vermittelt.
Es ist 912 m² groß und kostet 114.000,00 € - provisionsfrei
Lage des Objektes
Zum Verkauf steht ein erschlossenes Grundstück in Bitterfeld - Wolfen - OT. Krondorf. Das angebotene Grundstück mit einer Größe von 912 m² ist bereits erschlossen und bei Interesse zeitnah bebaubar. Die Bebauung sieht 2 Vollgeschosse vor - Stadtvilla. Es handelt sich um ein B-Plan Baugebiet, durch welches Sie sich das lästige und langwierige Baugenehmigungsverfahren ersparen. Das Grundstück ist komplett erschlossen - außer Gas.
Und um einen Ausgleich für schnelles Internet und die Arbeit zu finden, heißt Sie das Woliday mit seinem 20 m Becken, der Wasserrutsche, dem Solebecken sowie der hervorragenden Außenanlage zum Knüpfen von "sozialen Kontakten" in nur 400m Entfernung herzlich Willkommen.
Die Lage der Baugrundstücke ist ideal für alle Altersklassen. Kindergarten, Grundschule & Gymnasium befinden sich genauso in unmittelbarer Nähe wie Ärzte und eine Apotheke.
Die gastronomische Versorgung ist selbstverständlich auch gewährleistet.
Auch wenn sich das Baugrundstück in einer sehr ruhigen Lage von Wolfen befindet, ist das Stadtzentrum in nur wenigen Minuten zu erreichen.
Das angebote Haus ist natürlich nur ein Bebauungsvorschlag. Ob größer oder kleiner das entscheiden Sie. Den Grundriss zum Haus planen Sie gemeinsam mit Ihrer Familie und wir erwecken diesen in Bauphase für Sie zum leben.
Wenn ich Ihr Interesse für dieses Grundstück geweckt habe, dann rufen Sie mich unter 0176 70257881 an und wir vereinbaren spontan einen Beratungs- und Besichtigungstermin.
Und um einen Ausgleich für schnelles Internet und die Arbeit zu finden, heißt Sie das Woliday mit seinem 20 m Becken, der Wasserrutsche, dem Solebecken sowie der hervorragenden Außenanlage zum Knüpfen von "sozialen Kontakten" in nur 400m Entfernung herzlich Willkommen.
Die Lage der Baugrundstücke ist ideal für alle Altersklassen. Kindergarten, Grundschule & Gymnasium befinden sich genauso in unmittelbarer Nähe wie Ärzte und eine Apotheke.
Die gastronomische Versorgung ist selbstverständlich auch gewährleistet.
Auch wenn sich das Baugrundstück in einer sehr ruhigen Lage von Wolfen befindet, ist das Stadtzentrum in nur wenigen Minuten zu erreichen.
Das angebote Haus ist natürlich nur ein Bebauungsvorschlag. Ob größer oder kleiner das entscheiden Sie. Den Grundriss zum Haus planen Sie gemeinsam mit Ihrer Familie und wir erwecken diesen in Bauphase für Sie zum leben.
Wenn ich Ihr Interesse für dieses Grundstück geweckt habe, dann rufen Sie mich unter 0176 70257881 an und wir vereinbaren spontan einen Beratungs- und Besichtigungstermin.
Sonstige Informationen
Ausstattung FIBAV Massiv Haus:
•EnEV 2016 - KFW 55 - auch als 40 und 40 + möglich
•Massive Bauweise – Stein auf Stein
•Hervorragendes Preis-Leistungsverhältnis
•Schlüsselfertig
•Erfahrung aus über 31Jahren Hausbau - etwa 600 Häuser pro Jahr
•Beratung durch kompetente Immobilienspezialisten
•Verwendung deutscher Markenprodukte
•Umfangreiche Produktpalette
•Ausführlicher und fairer BGB-Vertrag
•Fertigstellungsbürgschaft
• Garantierte Bauzeit von 8 Monaten + 10 Monate Festpreisgarantie
•Inkl. Bauantrag, Statik, Wärmeschutz mit Energiepass und Entwässerungsantrag
•Inkl. Erdarbeiten und Bodenplatte
•Blower Door Test (Nachweis Luftdichtigkeit)
•Bauüberwachung durch erfahrene Bauleiterung
Grundriss EG
Grundriss OG
1
2
3
4
5
6
7
1 OG
2 OG
3 OG
4 OG
5 OG
6 OG
7 OG
Fibav Logo
Fibav Partner
Herr Cornell Becker JR Heimdall Invest Gmbh
Bitterfeld Wolfen - Grundstücke Reudener Straße 1
Bitterfeld Wolfen - Grundstücke Reudener Straße 2
Lageplan Krondorfer Wieen
Lageplan