Exposé
Objektart:
Haus
» Einfamilienhaus
» Kauf
ISTRIEN, LABIN - Modern gestaltete und luxuriös ausgestattete Villa
Angeboten von:
DUX Nekretnine d.o.o.
Tizianova
51000 Rijeka
Telefon:+385 51518-174
www.dux-nekretnine.hr
Ansprechpartner/in
Iva Zajc| Telefon: | +385 91 480 8808 |
| Mobil | +385 91 480 8808 |
Das Wichtigste auf einen Blick:
| Objektnummer: | 7838054 |
Preise
| Kaufpreis | 1.290.000 € |
| Nebenkosten | keine Angabe |
Flächen
| Gesamtfläche | 320 m² |
| Grundstücksfläche | 1.230 m² |
Objekt Adresse
52220 Labin
- Istrien
Sonstige Angaben
| Baujahr | 2022 |
| Zimmer | 6 |
| Verfügbar ab | keine Angabe |
| Bad | 5 |
| Anzahl der Etagen im Haus | 1 |
| Bad | 5 |
Objektbeschreibung
ISTRIEN, LABIN - Die modern gestaltete und luxuriös ausgestattete Villa
Labin befindet sich an der Ostküste Istriens auf einem 320 m hohen Hügel, nur 3 km vom Meer entfernt. Das Klima in Labin ist mediterran. Die Altstadt liegt auf einem Hügel, und der andere Teil der Stadt darunter ist als Podlabin bekannt. Region Labin ist der geografische und historische Name des östlichen Teils Istriens. Es umfasst eine Fläche von ca. 220 km und umfasst insgesamt 84 Siedlungen.
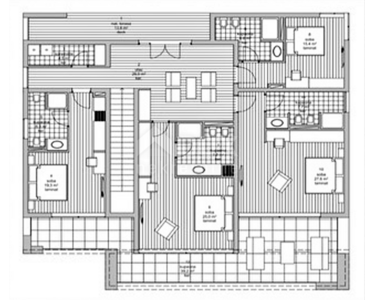
In der Nähe von Labin steht eine modern gestaltete und luxuriös ausgestattete Villa zum Verkauf. Die Villa von 470m2 hat 320m2 Wohnfläche. Es besteht aus Wohnzimmer, Küche mit Essbereich, Abstellraum, Toilette, Schlafzimmer mit eigenem Bad und Wellnessbereich im Erdgeschoss und drei Schlafzimmern mit eigenem Bad im Obergeschoss. Diese Luxusvilla ist mit hochwertigen Geräten und Möbeln ausgestattet und wird auch so verkauft. Auf einem vollständig angelegten Garten von 1230m2 befindet sich ein Swimmingpool mit Sonnendeck und Parkplätzen. Diese moderne Villa in einer natürlichen Umgebung erreicht ein ausgewogenes Erlebnis und ist ideal für Entspannung und Erholung oder für das Familienleben.
Sehr geehrte Kunden, die Agenturprovision wird gemäß den Allgemeinen Geschäftsbedingungen www.dux-nekretnine.hr/opci-uvjeti-poslovanja berechnet
ID CODE: 12885
Labin befindet sich an der Ostküste Istriens auf einem 320 m hohen Hügel, nur 3 km vom Meer entfernt. Das Klima in Labin ist mediterran. Die Altstadt liegt auf einem Hügel, und der andere Teil der Stadt darunter ist als Podlabin bekannt. Region Labin ist der geografische und historische Name des östlichen Teils Istriens. Es umfasst eine Fläche von ca. 220 km und umfasst insgesamt 84 Siedlungen.
In der Nähe von Labin steht eine modern gestaltete und luxuriös ausgestattete Villa zum Verkauf. Die Villa von 470m2 hat 320m2 Wohnfläche. Es besteht aus Wohnzimmer, Küche mit Essbereich, Abstellraum, Toilette, Schlafzimmer mit eigenem Bad und Wellnessbereich im Erdgeschoss und drei Schlafzimmern mit eigenem Bad im Obergeschoss. Diese Luxusvilla ist mit hochwertigen Geräten und Möbeln ausgestattet und wird auch so verkauft. Auf einem vollständig angelegten Garten von 1230m2 befindet sich ein Swimmingpool mit Sonnendeck und Parkplätzen. Diese moderne Villa in einer natürlichen Umgebung erreicht ein ausgewogenes Erlebnis und ist ideal für Entspannung und Erholung oder für das Familienleben.
Sehr geehrte Kunden, die Agenturprovision wird gemäß den Allgemeinen Geschäftsbedingungen www.dux-nekretnine.hr/opci-uvjeti-poslovanja berechnet
ID CODE: 12885