Exposé
Objektart:
Haus
» Bungalow
» Kauf
Standort: Haus »
Deutschland » Niedersachsen » Emsland (Kreis) » Haselünne
Exklusiver Neubau – Satteldachbungalow in Sackgassenendlage mit freiem Feldblick
1
Das Wichtigste auf einen Blick:
| Objektnummer: | 7718526 |
Preise
| Kaufpreis | 455.000 € |
| Nebenkosten | keine Angabe |
Flächen
| Wohnfläche | 122,7 m² |
| Grundstücksfläche | 767 m² |
Objekt Adresse
49740 Haselünne
Sonstige Angaben
| Baujahr | 2022 |
| Zimmer | 3 |
| Verfügbar ab | keine Angabe |
| Bad | 1 |
| Bad | 1 |
| Boden | Fliesen |
| Baujahr (laut Energieausweis) | 2022 |
| Heizungsart | Fußbodenheizung |
| Wesentlicher Energieträger | Gas |
| Energieträger/Befeuerung | Gas |
Objektbeschreibung
Provisionsfrei für den Käufer: Dieser überaus ansprechende Satteldachbungalow wird in einer ruhigen und Stadtkern nahen Wohnlage von Haselünne erstellt (Sackgassenendlage). Das großzügige Wohnhaus besticht durch seine außergewöhnliche Architektur und bietet diverse repräsentative Besonderheiten. Großzügige, lichtdurchflutete Räume gepaart mit elegantem Pfiff geben dieser Traumimmobilie den besonderen Glanz. Im Dielenbereich befindet sich eine Aussparung (Treppenloch) in der Betondecke. Hier wäre der Einbau einer formschönen Treppenanlage möglich. Der gesamte Dachgeschossbereich (ca.70 m²) ist ausbaufähig. Der Empfangsbereich ist der Mittelpunkt dieser Immobilie, von hieraus gelangt man auf der einen Seite in den Schlaftrakt sowie auf der anderen in den großzügigen und offen gestalteten Küchen/Wohn/Essbereich. Absoluter Blickfang ist im Wohnbereich die offene Decke bis in die Dachspitze und durch die große Glasfront hat man freie Sicht in den Garten. Alle hinteren Fensterelemente der Immobilie werden bodentief angeordnet. Die überdachte Gartenterrasse ist vom Wohnbereich zu gängig. Es befinden sich 2 Schlafzimmer, ein großzügiges Bad und ein zusätzliches Gäste WC im Objekt. Dieser Satteldachbungalow wird komplett schlüsselfertig inkl. Maler- & Gartenarbeiten erstellt. Auf eine hochwertige und einwandfreie Bauqualität wird geachtet.
Daten Energieausweis: In Vorbereitung !
Daten Energieausweis: In Vorbereitung !
Ausstattung
Bodenbeläge:
Der gesamte Erdgeschossbereich kann nach Wahl mit Domesticböden oder mit einer hochwertigen und großformatigen Bodenfliese bestückt werden, klasse Optik. Die Schlafräume werden mit Domesticböden oder nach Wunsch ebenfalls mit Fliesenböden bestückt. Das Badezimmer kann auch nach Wahl mit einer Fliese bestückt werden. Die Fußbodenheizung wird separat von jedem Raum aus geregelt.
Küche:
Der Küchenbereich ist zum Wohn/Esszimmer hin offen gestaltet. Angrenzend an der Küchen befindet sich der Hauswirtschaftsraum. Kurze und durchdachte Wege. Im Hauswirtschaftsraum befindet sich eine Seiteneingangstür mit Zugang zum Carport. Gerne sind wir Ihnen auch bei der Wahl einer neuen Einbauküche behilflich. Unser Küchen - Studio wird Sie auch in diesem Punkt professionell beraten
Bäder:
Das Top exklusive Badezimmer wird wie folgt ausgestattet: Wannenanlage, Waschbecken mit Halbsäule (Ablagefläche), bodentiefe Dusche, Hänge WC, deckenhohe und sehr geschmackvolle Verfliesung. Hochwertige Elemente und Armaturen. Das Gäste Dusch/WC wird gleichwertig ausgestattet, Hänge WC, Waschbecken mit Halbsäule sowie eine geschmackvolle Verfliesung.
Garage:
Großzügiges massiv gemauertes Carport mit angrenzenden massiven Geräteraum. Dieser bietet viel Platz für Gartengeräte und Fahrräder.
Grundstück:
Das Gartengrundstück wird komplett pflegeleicht angelegt. Die Freiflächen werden mit Rasensaat versehen. Die Grundstücksgrenzen werden mit einer Lorbeerhecke eingefriedet. Die Hoffläche sowie die Gartenterrasse werden großflächig und einheitlich gepflastert.
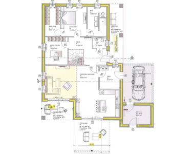
Erdgeschoss:
Diele ca. 14,46 m²
Gäste WC ca. 2,74 m²
Badezimmer ca. 10,22 m²
Küche/Wohn/Essbereich ca. 52,21 m²
Schlafen I ca. 14,45 m²
Ankleide ca. 8,42 m²
Schlafen II ca. 11,93 m²
HWR ca. 8,72 m²
Dachgeschoss:
Ausbaureserve ca. 70,00 m²
Lassen Sie sich bei einer Besichtigung von uns inspirieren damit Ihr Traum vom Eigenheim wahr wird. Dieser Satteldachbungalow wird komplett schlüsselfertig inkl. Maler- & Gartenarbeiten erstellt. Bei weiteren Fragen steht Ihnen das Gründer-Immobilien Team aus Dörpen im Emsland jeder Zeit zur Verfügung!
Der gesamte Erdgeschossbereich kann nach Wahl mit Domesticböden oder mit einer hochwertigen und großformatigen Bodenfliese bestückt werden, klasse Optik. Die Schlafräume werden mit Domesticböden oder nach Wunsch ebenfalls mit Fliesenböden bestückt. Das Badezimmer kann auch nach Wahl mit einer Fliese bestückt werden. Die Fußbodenheizung wird separat von jedem Raum aus geregelt.
Küche:
Der Küchenbereich ist zum Wohn/Esszimmer hin offen gestaltet. Angrenzend an der Küchen befindet sich der Hauswirtschaftsraum. Kurze und durchdachte Wege. Im Hauswirtschaftsraum befindet sich eine Seiteneingangstür mit Zugang zum Carport. Gerne sind wir Ihnen auch bei der Wahl einer neuen Einbauküche behilflich. Unser Küchen - Studio wird Sie auch in diesem Punkt professionell beraten
Bäder:
Das Top exklusive Badezimmer wird wie folgt ausgestattet: Wannenanlage, Waschbecken mit Halbsäule (Ablagefläche), bodentiefe Dusche, Hänge WC, deckenhohe und sehr geschmackvolle Verfliesung. Hochwertige Elemente und Armaturen. Das Gäste Dusch/WC wird gleichwertig ausgestattet, Hänge WC, Waschbecken mit Halbsäule sowie eine geschmackvolle Verfliesung.
Garage:
Großzügiges massiv gemauertes Carport mit angrenzenden massiven Geräteraum. Dieser bietet viel Platz für Gartengeräte und Fahrräder.
Grundstück:
Das Gartengrundstück wird komplett pflegeleicht angelegt. Die Freiflächen werden mit Rasensaat versehen. Die Grundstücksgrenzen werden mit einer Lorbeerhecke eingefriedet. Die Hoffläche sowie die Gartenterrasse werden großflächig und einheitlich gepflastert.
Erdgeschoss:
Diele ca. 14,46 m²
Gäste WC ca. 2,74 m²
Badezimmer ca. 10,22 m²
Küche/Wohn/Essbereich ca. 52,21 m²
Schlafen I ca. 14,45 m²
Ankleide ca. 8,42 m²
Schlafen II ca. 11,93 m²
HWR ca. 8,72 m²
Dachgeschoss:
Ausbaureserve ca. 70,00 m²
Lassen Sie sich bei einer Besichtigung von uns inspirieren damit Ihr Traum vom Eigenheim wahr wird. Dieser Satteldachbungalow wird komplett schlüsselfertig inkl. Maler- & Gartenarbeiten erstellt. Bei weiteren Fragen steht Ihnen das Gründer-Immobilien Team aus Dörpen im Emsland jeder Zeit zur Verfügung!
Lage des Objektes
Ruhige und dennoch zentrale Wohnlage / wenige Gehminuten bis ins Stadtzentrum / Sackgassenendlage
2
3
4
5
6
7
8
9
10
11
12
12
13
15
16
17
18
EG