Exposé
Objektart:
Büro / Praxen
» Bueroflaeche
» Miete
Standort: Büro / Praxen »
Deutschland » Nordrhein-Westfalen » Rhein-Kreis Neuss (Kreis) » Neuss
Attraktive Büroflächen in Neuss
Das Wichtigste auf einen Blick:
| Objektnummer: | 7688839 |
Preise
| Nebenkosten | keine Angabe |
| Mietpreis pro m² | 9 € |
Flächen
| Gesamtfläche | 15.555,5 m² |
| Ladenfläche | 715 m² |
| Verkaufsfläche | m² |
| Bürofläche | 1.695,7 m² |
| Fläche teilbar ab | 128 m² |
Objekt Adresse
41460 Neuss
- Nordrhein-Westfalen
Sonstige Angaben
| Baujahr | 1989 |
| Verfügbar ab | kurzfristig |
| Boden | Teppich |
| Fahrstuhl | Ja |
| Energieausweistyp | Verbrauch |
| Gültig bis | 2025-03-30 |
| Baujahr (laut Energieausweis) | 1989 |
| Heizungsart | Zentralheizung |
| Wesentlicher Energieträger | Gas |
| Energieträger/Befeuerung | Gas |
Objektbeschreibung
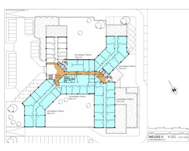
Der 6-geschossige Rotklinkerbau liegt leicht zurückversetzt am Hammfelddamm. Das Gebäude ist sternförmig gegliedert und jede Büroetage wird durch zwei Treppenhäuser erschlossen. Dadurch ist es möglich, Mieteinheiten unterschiedlicher Größe - ab ca. 300 m² - anzubieten. Der gläserne Eingangsbereich ist architektonisch sehr reizvoll gestaltet und mit einer repräsentativen Vorfahrt ausgestattet.
Ausstattung
Das Objekt verfügt über folgende Ausstattungsdetails:
- repräsentative Eingangszone
- abgehängte Decken mit Rastereinbauleuchten
- textiler Fußbodenbelag
- Raumtrennung mit Leichtbauwänden
- Aluminiumfenster mit Dreh-/Kippbeschlägen und Isolierverglasung (individuelle Lüftung möglich)
- teilweise Sonneschutzanlagen
- Personenaufzüge als Dreiergruppe
- Sanitärobjekte mit Mittelmosaik-Böden gefliest, Wände gekachelt
- rückwärtige LKW-Rampe und Lastenaufzug
- repräsentative Eingangszone
- abgehängte Decken mit Rastereinbauleuchten
- textiler Fußbodenbelag
- Raumtrennung mit Leichtbauwänden
- Aluminiumfenster mit Dreh-/Kippbeschlägen und Isolierverglasung (individuelle Lüftung möglich)
- teilweise Sonneschutzanlagen
- Personenaufzüge als Dreiergruppe
- Sanitärobjekte mit Mittelmosaik-Böden gefliest, Wände gekachelt
- rückwärtige LKW-Rampe und Lastenaufzug
Lage des Objektes
Das Bürogebäude befindet sich im Bürocenter Hammfeld in unmittelbarer Nähe der Südbrücke, dem wichtigsten Bindeglied zwischen Düsseldorf und Neuss.
Mit dem PKW ist der Standort verkehrsgünstig aus allen Richtungen über die umliegenden Autobahnen A57, Ausfahrt Neuss-Hafen zu erreichen. Der Flughafen Düsseldorf International ist nur ca. 20 Autominuten entfernt.
Mit dem PKW ist der Standort verkehrsgünstig aus allen Richtungen über die umliegenden Autobahnen A57, Ausfahrt Neuss-Hafen zu erreichen. Der Flughafen Düsseldorf International ist nur ca. 20 Autominuten entfernt.
Sonstige Informationen
Das Büro- und Kommunikationszentrum Hammfeld erreicht man günstig durch anliegende öffentliche Verkehrsmittel wie z.B. mit den Straßenbahnlinien 704 von Düsseldorf in Richtung Neuss.
Außen 1
Außen 2
Foyer
4.OG Etage
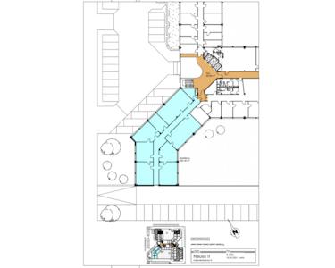
4.OG 319m²
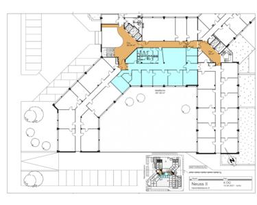
4.OG 372m²
4.OG 373m²
4.OG unten rechts
4.OG 287m ²
Grundriss EG 476 m²