Exposé
Objektart:
Büro / Praxen
» Buerohaus
» Miete
Standort: Büro / Praxen »
Deutschland » Sachsen » Leipzig, Stadt (Kreis) » Leipzig
ERSTBEZUG | Neubau-Projekt im Leipziger Zentrum
Außenansicht (11)
Das Wichtigste auf einen Blick:
| Objektnummer: | 7686722 |
Preise
| Miete für das Objekt | Auf Anfrage |
| Nebenkosten | keine Angabe |
| Heizkosten enthalten | Ja |
| Mietpreis pro m² | 16,5 € |
Flächen
| Bürofläche | 1.782,3 m² |
| Bürofläche | 1.782,3 m² |
| Fläche teilbar ab | 1782,3 m² |
| Maklerprovision | provisionsfrei |
Objekt Adresse
Eutritzscher Str. 12
04105 Leipzig
Sonstige Angaben
| Verfügbar ab | keine Angabe |
Objektbeschreibung
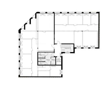
Der ca. 2.420,00 m² umfassende Bürokomplex erstreckt sich mit einem Gebäudeteil zur Eutritzscher Straße, mit dem anderen Flügel zum Wilhelm-Liebknecht-Platz. Bodentiefe Fenster bewirken eine lichtdurchflutete Ausstrahlung. Die Anbringung der französischen Balkone ermöglicht Ausflüge ins Freie, ohne das Büro zu verlassen. Das Neubauprojekt verfolgt einen edlen und modernen Stil und schmiegt sich dank der hellen Außenfassade ideal ins Bild der anliegenden Häuserreihe. Stellplätze stehen in der hauseigenen Tiefgarage zur Anmietung zur Verfügung. Im Objekt werden folgenden Flächen zur Verfügung stehen:
- Erdgeschoss mit ca. 291,40 m² Ladenfläche
- 1. Obergeschoss mit ca. 360,00 m² Bürofläche
- 2. Obergeschoss mit ca. 355,40 m² Bürofläche
- 3. Obergeschoss mit ca. 355,40 m² Bürofläche
- 4. Obergeschoss mit ca. 355,40 m² Bürofläche
- 5. Obergeschoss mit ca. 355,40 m² Bürofläche
- 6. Obergeschoss mit ca. 348,20 m² Bürofläche
- Erdgeschoss mit ca. 291,40 m² Ladenfläche
- 1. Obergeschoss mit ca. 360,00 m² Bürofläche
- 2. Obergeschoss mit ca. 355,40 m² Bürofläche
- 3. Obergeschoss mit ca. 355,40 m² Bürofläche
- 4. Obergeschoss mit ca. 355,40 m² Bürofläche
- 5. Obergeschoss mit ca. 355,40 m² Bürofläche
- 6. Obergeschoss mit ca. 348,20 m² Bürofläche
Lage des Objektes
Das sich in Planung befindliche Bürogebäude liegt im Leipziger Zentrum, direkt am Wilhelm-Liebknecht-Platz. Die Nähe zur Innenstadt und zum Leipziger Zentrum zeichnet die Attraktivität dieses Standortes aus, zudem liegt die Straßenbahnlinie 16 zur neuen Messe direkt vor der Tür. Über die Berliner Straße ist die B2 und B6 in wenigen Minuten erreichbar. Man befindet sich hier direkt am Verkehrsknotenpunkt der Stadt Leipzig.
Sonstige Informationen
Der Mietpreis richtet sich nach Ausstattung, Mietvertragslaufzeit und Lage im Objekt und liegt ca. zwischen 16,50 und 18,50 EUR/m² zzgl. Nebenkosten. Gern unterbreiten wir Ihnen ein persönliches Mietangebot.
Ladenanmietung leicht gemacht?
Bitte sprechen Sie uns an, gern stellen wir Ihnen eine Auswahl geeigneter Flächenangebote zusammen. Für Fragen, ein persönliches Gespräch oder auch eine persönliche Terminvereinbarung stehen wir Ihnen gern telefonisch unter 0341-5643000 zur Verfügung.
Außenansicht
Außenansicht
Ansicht
Ansicht
Grundriss