Exposé
Objektart:
Büro / Praxen
» Buerohaus
» Miete
Standort: Büro / Praxen »
Deutschland » Sachsen » Leipzig, Stadt (Kreis) » Leipzig
BUERO.flächen in den PLAGWITZER GEWERBEHÖFEN
Außenansicht
Das Wichtigste auf einen Blick:
| Objektnummer: | 7686700 |
Preise
| Miete für das Objekt | Auf Anfrage |
| Nebenkosten | keine Angabe |
| Heizkosten enthalten | Ja |
| Mietpreis pro m² | 12,5 € |
Flächen
| Bürofläche | 3.208,82 m² |
| Bürofläche | 3.208,82 m² |
| Fläche teilbar ab | 3208,82 m² |
| Maklerprovision | provisionsfrei |
Objekt Adresse
Markranstädter Str 11-17
04229 Leipzig
Sonstige Angaben
| Verfügbar ab | keine Angabe |
Objektbeschreibung
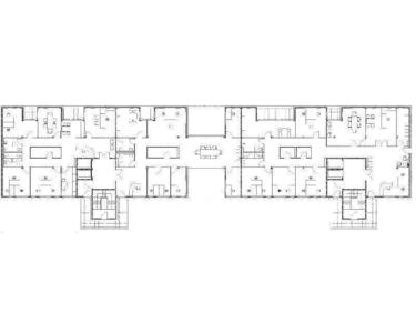
Die PLAGWITZER KUNST- und GEWERBEHÖFE westlich der Innenstadt gelegen, entstehen auf einer Fläche von rund 16 ha als eine neue Mischung aus Wohnen und Arbeiten, Einkaufen und Freizeit. Wo wertvolle Klinkergebäude und Ensembles das alte Stadtbild prägen, sollen vorhandene Ansätze ausgebaut und weiter vernetzt werden. Das derzeit sich in Planung befindliche Gebäude über 4 Etagen mit einer Fläche von insgesamt ca. 3208,82 m² wird voraussichtlich 2022 fertiggestellt werden. Der Mietbereich kann individuell nach dem Raumprofil des Mieters ausgebaut und ausgestattet werden.
Der angebende Mietbereich von ca. 3208,82 m² setzt sich aus folgender Teilfläche zusammen:
- Erdgeschoss mit ca. 1.076,86 m²
- 1. Obergeschoss mit ca. 714,35 m²
- 2. Obergeschoss mit ca. 708,79 m²
- 3. Obergeschoss mit ca. 708,79 m²
PKW Stellplätze sind zahlreich auf dem Gelände vorhanden.
Der angebende Mietbereich von ca. 3208,82 m² setzt sich aus folgender Teilfläche zusammen:
- Erdgeschoss mit ca. 1.076,86 m²
- 1. Obergeschoss mit ca. 714,35 m²
- 2. Obergeschoss mit ca. 708,79 m²
- 3. Obergeschoss mit ca. 708,79 m²
PKW Stellplätze sind zahlreich auf dem Gelände vorhanden.
Lage des Objektes
In den 1880er Jahren war Plagwitz bereits eine in vielen Ländern der Welt bekannte Adresse als Herkunftsort damals moderner und zuverlässiger Industrieerzeugnisse. Heute gilt diese Region als eines der innovativsten und interessantesten Stadtgebiete Leipzigs. Die Revitalisierung und Schaffung urbaner Strukturen, die zentrale Lage im Stadtgebiet und die Lage am Karl-Heine-Kanal, haben Plagwitz nicht nur zu einem beliebten Standort für Unternehmen sondern auch zum Wohnen entwickelt. In wenigen Fußminuten ist eine Straßenbahnhaltestelle erreichbar, die in ca. 10 Fahrminuten die Innenstadt erreicht. Das Stadtzentrum liegt ca. 3 km Luftlinie entfernt.
Sonstige Informationen
Der angegebene Mietpreis richtet sich nach Ausstattung, Lage im Gebäude sowie Mietvertragslaufzeit und liegt zwischen 12,50 EUR/m² – 15,00 EUR/m² zzgl. Nebenkosten.
Lageplan
Innenenansicht
Innenansicht
Innenansicht
Innenansicht
Grundriss